Проект одноэтажного дома ДКБ-101
Дом подходит для:
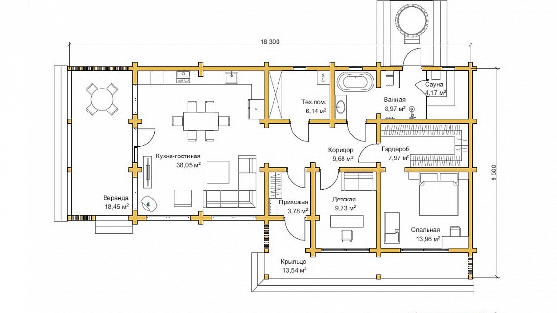
Площадь
101 м 2
Размер дома:
9,5х18,3
Этажей:
1
Спален:
2
Санузел:
1
Гараж:
Нет
Баня:
Нет
Терраса:
Да
Панорамные окна:
Нет
Мастер-спальня:
Нет
Планировка
Фасады
О проекте
Уютный дом из клееного бруса площадью 101 м² с жилыми 66 м², где каждая деталь продумана для комфорта. Деревянные стены дарят тепло и спокойствие, а профнастил дополняет современный облик. Небольшие размеры делают дом удобным для жизни, а продуманная планировка создает ощущение простора. Идеальный вариант для семьи с одним ребенком.Характеристики
- Общая площадь: 101 м2
- Жилая площадь: 66 м2
- Количество этажей: 1
- Гараж: нет
- Площадь кровли: 109 м2
- Форма: Квадратные дома
- Тип кровли: Дома с многощипцовой крышей
- Пристрой: Дома с верандой
- Отделка: С черновой отделкой
- Фундамент: Дома с столбчатым фундаментом
Материалы и перечень работ
- Заполнение столбов - бетон(сертифицированный);
- Армирование столбов – композитная арматура
- Закладные пластины металлические
- Обвязка брусом(антисептированный);
- Геодезические работы: разбивка осей свай, шаг 2–2,5 м;
- Стеновой комлект дома - сухой , микроволновая сушка, хвойные породы (сосна, ель)
- Антисептирование межвенцовое - антисептик "Сайтекс"
- Разработка проекта в программе К3-коттедж.
- Монтаж нагелей (шканты) - диам 25 мм, сухой березовый
- Уплотнитель для закладного бруса - Джут
- Монтаж стропильной системы - 50х200 мм, хвойные породы
- Монтаж межстропильных закладных досок - 50х200 мм, хвойные породы
- Монтаж контр бруса подобрешёточного - 30х50 мм. хвойные породы.
- Монтаж кровли оцинкованный профлист, 0,45 мм, цвет на выбор.
- Монтаж доборных элементов кровли - конек
- В стоимость не входит
- В стоимость не входит
- В стоимость не входит
- Заполнение столбов - бетон(сертифицированный);
- Армирование столбов – композитная арматура
- Закладные пластины металлические
- Обвязка брусом(антисептированный);
- Геодезические работы: разбивка осей свай, шаг 2–2,5 м;
- Стеновой комлект дома - сухой , микроволновая сушка, хвойные породы (сосна, ель)
- Антисептирование межвенцовое - антисептик "Сайтекс"
- Разработка проекта в программе К3-коттедж.
- Монтаж нагелей (шканты) - диам 25 мм, сухой березовый
- Уплотнитель для закладного бруса - Джут
- Монтаж стропильной системы - 50х200 мм, хвойные породы
- Монтаж межстропильных закладных досок - 50х200 мм, хвойные породы
- Монтаж контр бруса подобрешёточного - 30х50 мм. хвойные породы.
- Монтаж кровли оцинкованный профлист, 0,45 мм, цвет на выбор.
- Монтаж доборных элементов кровли - конек
- В стоимость не входит
- В стоимость не входит
- В стоимость не входит
Что еще входит в стоимость:
Отправьте свои контакты и мы расчитаем вам смету
Скорее всего вам подойдут следующие проекты домов:
Дом подходит для:
Дом подходит для:
Проект одноэтажного дома Дом из бруса ДБ-66 проект Технология
Семья с одним ребенком
Дом подходит для:
Дом подходит для:













