Проект одноэтажного дома ДО-101
Дом подходит для:
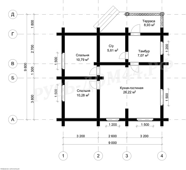
Площадь
107 м 2
Размер дома:
11,75×9,5
Этажей:
1
Спален:
3
Санузел:
1
Гараж:
Нет
Баня:
Нет
Терраса:
Да
Панорамные окна:
Нет
Мастер-спальня:
Нет
Планировка
Характеристики
- Общая площадь: 107 м2
- Жилая площадь: 81 м2
- Количество этажей: 1
- Гараж: нет
- Площадь кровли: 114 м2
- Форма: Квадратные дома
- Тип кровли: Дома с двускатной крышей
- Пристрой: Дома с террасой
- Отделка: Без отделки
Материалы и перечень работ
- В стоимость не входит
- Монтаж стен дома и перегородок из бревна Ø200 мм
- Домокомплект из плотного северного леса зимней заготовки
- Монтаж бревна осуществляется с помощью деревянных нагелей
- Производится монтаж межвенцового утеплителя «Klimalan»
- Монтаж лаг пола из бруса 200×100 мм через 0,6 метра
- Конструкция кровли выполняется из доски 150×50 мм
- Шаг стропил через 0,6 метра и обрешетка из доски 120×20 мм
- Используются плавающие опоры
- Кровля временная из гидроизола с прижимными рейками
- Крепление стропил в коньке — шарнирное
- В стоимость не входит
- В стоимость не входит
- В стоимость не входит
- В стоимость не входит
- Монтаж стен дома и перегородок из бревна Ø200 мм
- Домокомплект из плотного северного леса зимней заготовки
- Монтаж бревна осуществляется с помощью деревянных нагелей
- Производится монтаж межвенцового утеплителя «Klimalan»
- Монтаж лаг пола из бруса 200×100 мм через 0,6 метра
- Конструкция кровли выполняется из доски 150×50 мм
- Шаг стропил через 0,6 метра и обрешетка из доски 120×20 мм
- Используются плавающие опоры
- Кровля временная из гидроизола с прижимными рейками
- Крепление стропил в коньке — шарнирное
- В стоимость не входит
- В стоимость не входит
- В стоимость не входит
Что еще входит в стоимость:
Отправьте свои контакты и мы расчитаем вам смету
Скорее всего вам подойдут следующие проекты домов:
Дом подходит для:
Проект одноэтажного дома Дом из бруса Бобровый Лог 7.5х9 с большой летней террасой
Семья с двумя детьми
Дом подходит для:
Дом подходит для:
Дом подходит для:












