Проект одноэтажного дома ДО 298
Площадь
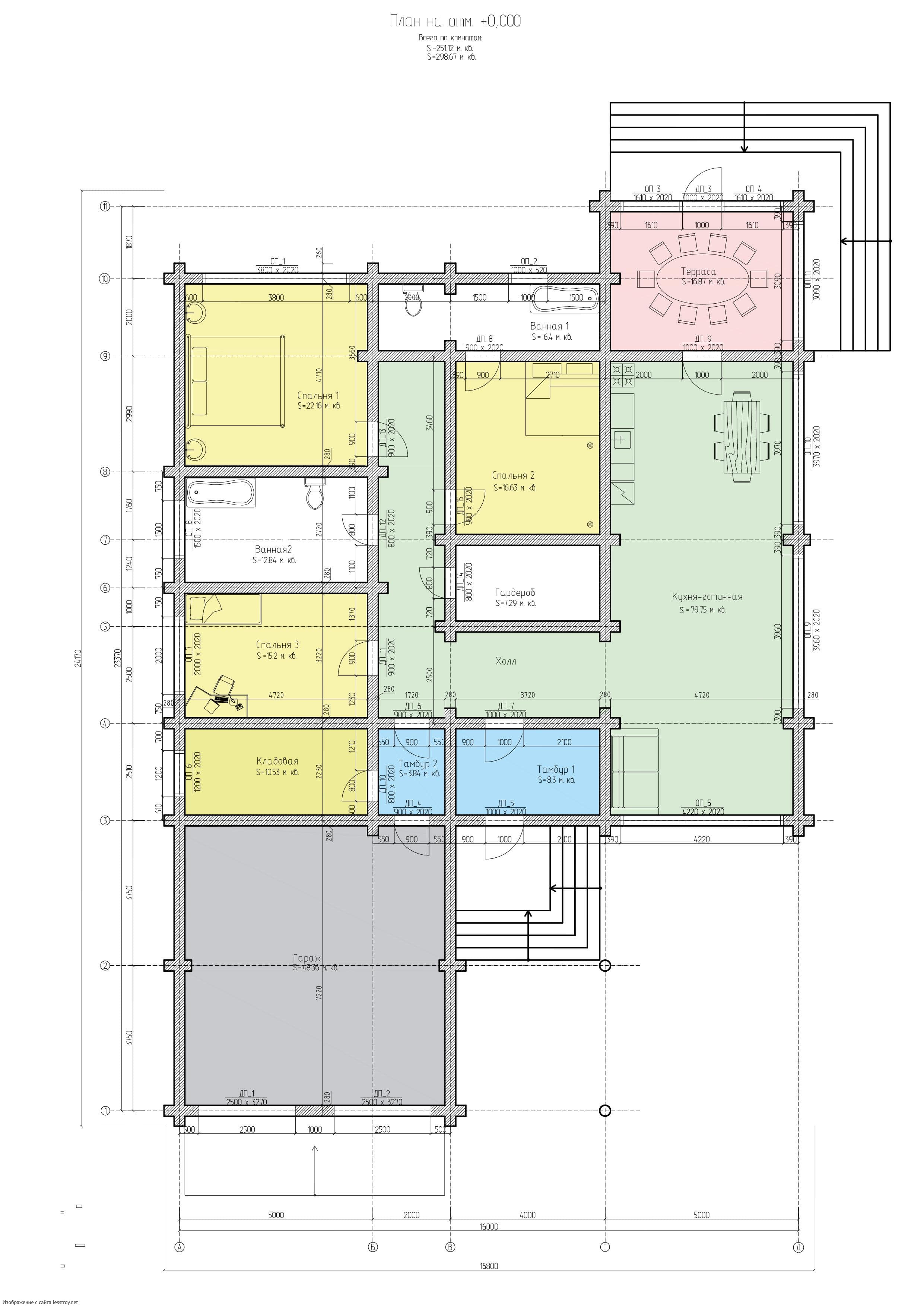
298 м 2
Размер дома:
Этажей:
1
Спален:
3
Санузел:
0
Гараж:
Нет
Баня:
Нет
Терраса:
Нет
Панорамные окна:
Нет
Мастер-спальня:
Нет
О проекте
Дом, где можно плакать от умиления. Чёткая логика планировки на 298 м². Материал кровли — битумная черепица, что добавляет зданию индивидуальность. Наличие 3 спальни удовлетворит запросы семьи с детьми. Дом спроектирован в духе дома в классическом стиле.Характеристики
- Общая площадь: 298 м2
- Количество этажей: 1
- Стиль, разновидность: Дома в ином стиле
- Форма: Прямоугольные дома
- Тип кровли: Дома с многощипцовой крышей
- Отделка: Без отделки
Отправьте свои контакты и мы расчитаем вам смету
Скорее всего вам подойдут следующие проекты домов:
Дом подходит для:




