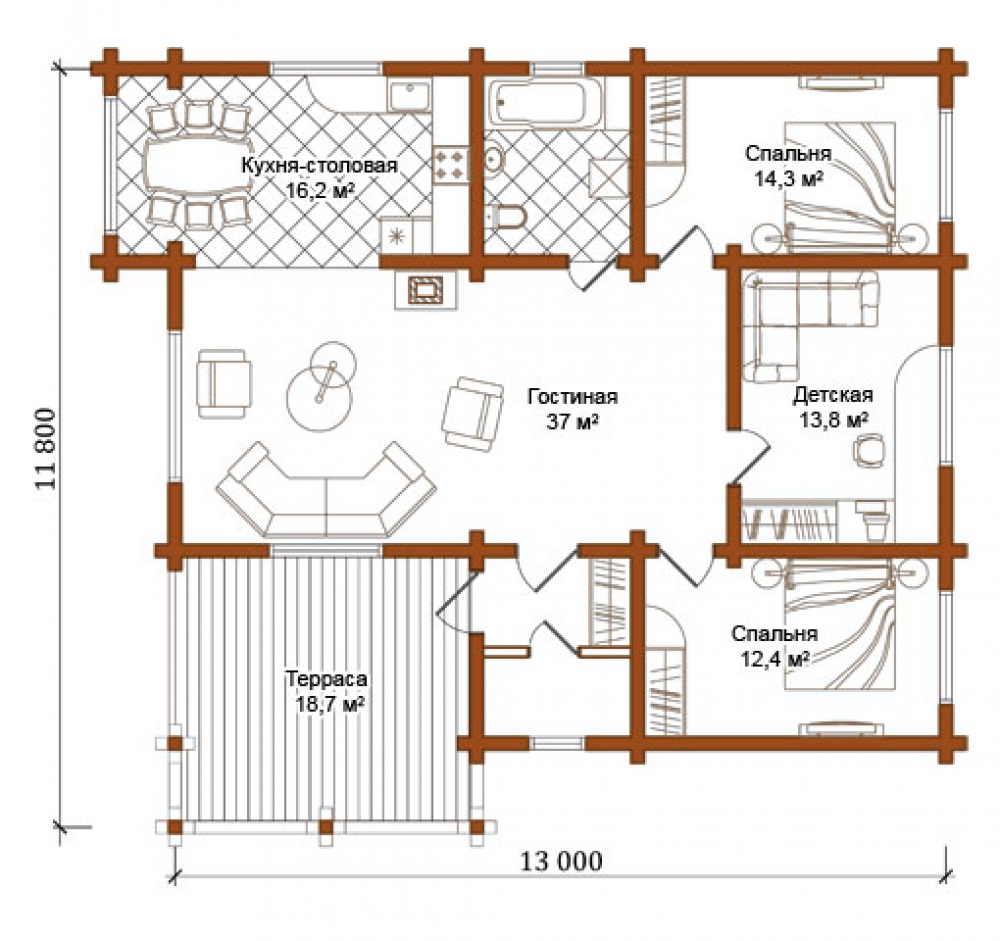
Проект одноэтажного дома Дом 134
Площадь
140 м 2
Размер дома:
Этажей:
1
Спален:
0
Санузел:
0
Гараж:
Нет
Баня:
Нет
Терраса:
Нет
Панорамные окна:
Нет
Мастер-спальня:
Нет
О проекте
Архитектура, помогающая восстановить силы Рационально распределённые 140 м² делают жильё удобным. Архитектура выполнена в стиле дома в классическом стиле. В качестве кровли использована рубероид — материал, проверенный временем. Бревна делает дом надёжным при любой погоде.Характеристики
- Общая площадь: 140 м2
- Количество этажей: 1
- Стиль, разновидность: Дома в ином стиле
- Тип кровли: Дома с иной крышей
- Отделка: Без отделки
Отправьте свои контакты и мы расчитаем вам смету
Скорее всего вам подойдут следующие проекты домов:
Дом подходит для:
Дом подходит для:
Дом подходит для:












