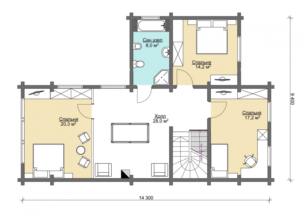
Проект одноэтажного дома Дом 235 кв.м.
Площадь
235 м 2
Размер дома:
11x16
Этажей:
1
Спален:
3
Санузел:
0
Гараж:
Нет
Баня:
Нет
Терраса:
Нет
Панорамные окна:
Нет
Мастер-спальня:
Нет
О проекте
Проект, в котором каждый уголок шепчет: Ты дома, родной. 235 м² идеально подойдут для семейных посиделок и личного пространства. Одноэтажная уютная планировка делает зонирование более логичным. Брус делает дом надёжным при любой погоде. Количество спален — 3, делая планировку гибкой.Характеристики
- Общая площадь: 235 м2
- Количество этажей: 1
- Стиль, разновидность: Дома в стиле Модерн
- Форма: Прямоугольные дома
- Тип кровли: Дома со сводчатой крышей
- Отделка: Без отделки
- Размер: 11x16
Отправьте свои контакты и мы расчитаем вам смету
Скорее всего вам подойдут следующие проекты домов:
Дом подходит для:
Дом подходит для:
Дом подходит для:











