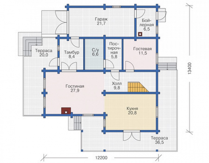
Проект одноэтажного дома Дом 255,2 кв.м.
Площадь
255 м 2
Размер дома:
13x15
Этажей:
1
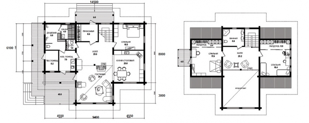
Спален:
3
Санузел:
0
Гараж:
Нет
Баня:
Нет
Терраса:
Нет
Панорамные окна:
Нет
Мастер-спальня:
Нет
О проекте
Здесь каждая дверь ведёт в новый уютный мир. Объём внутреннего пространства — 255 м² — создаёт ощущение уюта. В доме предусмотрено 3 спальни, что важно для комфорта. Дом спроектирован в духе дома в стиле модерн. Конструкция из Брус обеспечивает прочность и долговечность.Характеристики
- Общая площадь: 255 м2
- Количество этажей: 1
- Стиль, разновидность: Дома в стиле Модерн
- Форма: Прямоугольные дома
- Тип кровли: Дома со сводчатой крышей
- Отделка: Без отделки
- Размер: 13x15
Отправьте свои контакты и мы расчитаем вам смету
Скорее всего вам подойдут следующие проекты домов:
Дом подходит для:
Дом подходит для:
Дом подходит для:













