Проект двухэтажного дома Дом 6х6 К7
Площадь
70 м 2
Размер дома:
Этажей:
2
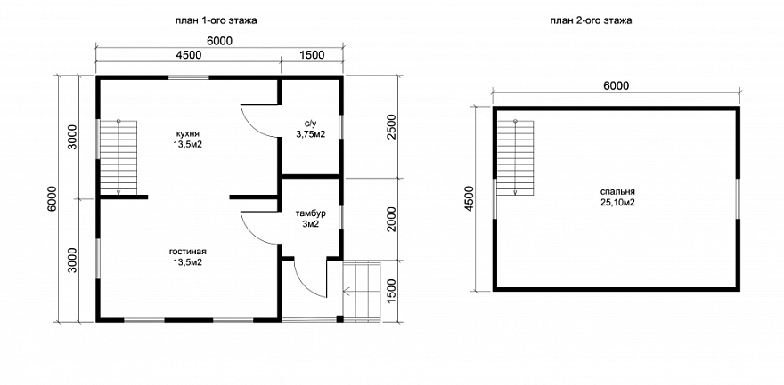
Спален:
3
Санузел:
0
Гараж:
Нет
Баня:
Нет
Терраса:
Нет
Панорамные окна:
Нет
Мастер-спальня:
Нет
О проекте
Дом, который становится вашей тихой гаванью.Дом продуман на 96 м² до последнего сантиметра. Архитектура выполнена в стиле дома в классическом стиле. Материал кровли — рубероид, что добавляет зданию индивидуальность. В доме предусмотрено 3 спальни, что важно для комфорта.Характеристики
- Общая площадь: 70 м2
- Количество этажей: 2
- Стиль, разновидность: Дома в ином стиле
- Форма: Прямоугольные дома
- Тип кровли: Дома с иной крышей
- Отделка: Без отделки














