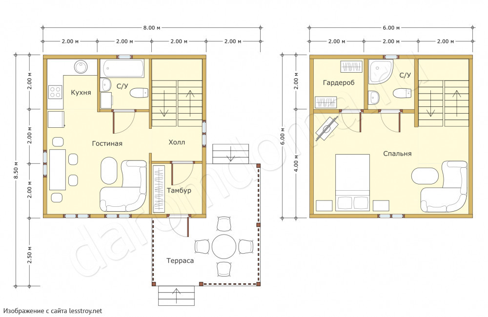
Проект двухэтажного дома Дом 6х6 м в полтора этажа с террасой
Площадь
86 м 2
Размер дома:
6x6
Этажей:
2
Спален:
1
Санузел:
0
Гараж:
Нет
Баня:
Нет
Терраса:
Нет
Панорамные окна:
Нет
Мастер-спальня:
Нет
О проекте
В этом решении бетонные стены хранят тепло детского смеха.121 м² — оптимальный метраж для комфорта и уединения. Двухэтажная грамотная планировка обеспечивает практичное распределение комнат. В качестве кровли использована ондулин — материал, проверенный временем. Конструкция из бруса обеспечивает прочность и долговечность.Характеристики
- Общая площадь: 86 м2
- Количество этажей: 2
- Стиль, разновидность: Дома в стиле Русский
- Форма: Прямоугольные дома
- Тип кровли: Дома с мансардной крышей
- Отделка: Без отделки
- Размер: 6x6
Отправьте свои контакты и мы расчитаем вам смету
Скорее всего вам подойдут следующие проекты домов:
Проект двухэтажного дома Проект дома из профилированного бруса 9,0 х 11,0 м «Кипень»
Семья с двумя детьми
Дом подходит для:
Дом подходит для:












