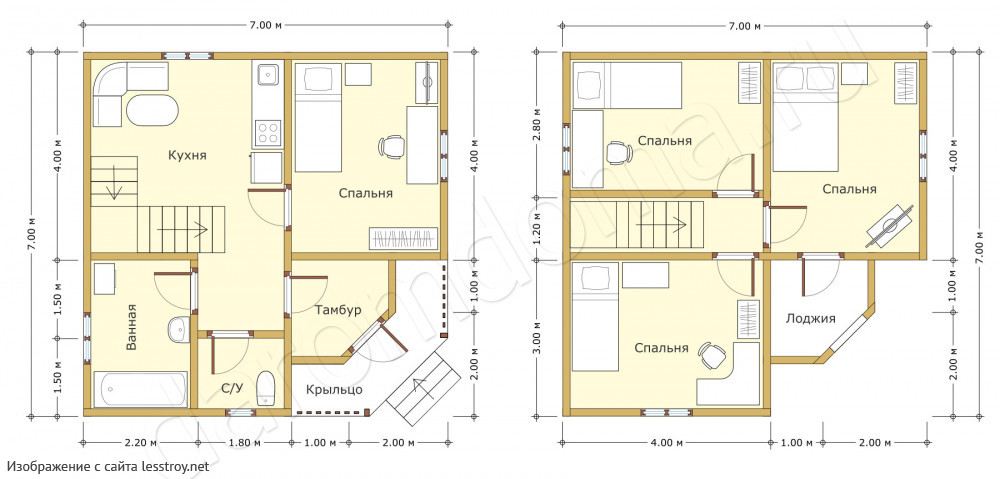
Проект двухэтажного дома Дом 7х7 м с тремя фронтонами и лоджией
Площадь
92 м 2
Размер дома:
7x7
Этажей:
2
Спален:
4
Санузел:
0
Гараж:
Нет
Баня:
Нет
Терраса:
Нет
Панорамные окна:
Нет
Мастер-спальня:
Нет
О проекте
Дом, который дарит ощущение покоя и комфорта в каждой детали.С такими 127 м² возможна любая конфигурация комнат. Дом спроектирован в духе дома в классическом стиле. Одноэтажная удобная планировка организует пространство максимально эффективно. Конструкция из бруса обеспечивает прочность и долговечность.Характеристики
- Общая площадь: 92 м2
- Количество этажей: 2
- Стиль, разновидность: Дома в стиле Русский
- Форма: Г-образные дома
- Тип кровли: Дома с мансардной крышей
- Отделка: Без отделки
- Размер: 7x7
Отправьте свои контакты и мы расчитаем вам смету
Скорее всего вам подойдут следующие проекты домов:
Дом подходит для:
Дом подходит для:
Дом подходит для:














