Проект двухэтажного дома Дом id-114102
Дом подходит для:
Площадь
295 м 2
Размер дома:
14x10
Этажей:
2
Спален:
4
Санузел:
2
Гараж:
Нет
Баня:
Нет
Терраса:
Нет
Панорамные окна:
Нет
Мастер-спальня:
Нет
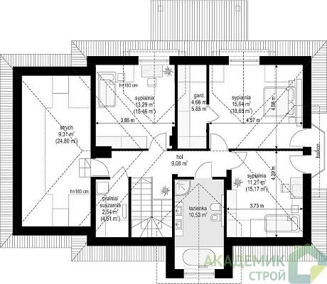
Планировка
Характеристики
- Общая площадь: 295 м2
- Жилая площадь: 117 м2
- Количество этажей: 2
- Гараж: На 1 машину
- Площадь кровли: 215,70 м2
- Размер: 14x10
- Фундамент: Дома с ленточным фундаментом
Отправьте свои контакты и мы расчитаем вам смету
Скорее всего вам подойдут следующие проекты домов:
Проект двухэтажного дома Дом id-112392
Для большой семьи
Дом подходит для:
Дом подходит для:
Проект двухэтажного дома Дом id-119826
Для большой семьи
Дом подходит для:
Дом подходит для:
Проект двухэтажного дома Дом id-115638
Для большой семьи
Дом подходит для:
Дом подходит для:


























