Проект двухэтажного дома Дом id-115400
Дом подходит для:
Площадь
305 м 2
Размер дома:
15x16
Этажей:
3
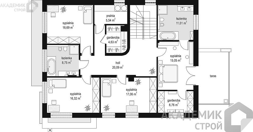
Спален:
4
Санузел:
3
Гараж:
Нет
Баня:
Нет
Терраса:
Нет
Панорамные окна:
Нет
Мастер-спальня:
Нет
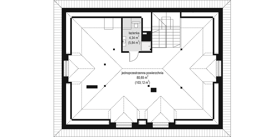
Планировка
Характеристики
- Общая площадь: 305 м2
- Жилая площадь: 185 м2
- Количество этажей: 3
- Гараж: На 2 машины
- Площадь кровли: 252,58 м2
- Размер: 15x16
- Фундамент: Дома с ленточным фундаментом
Отправьте свои контакты и мы расчитаем вам смету
Скорее всего вам подойдут следующие проекты домов:
Проект двухэтажного дома Дом id-54597
Для большой семьи
Дом подходит для:
Дом подходит для:
Дом подходит для:













