Проект одноэтажного дома Дом id-117388
Дом подходит для:
Площадь
283 м 2
Размер дома:
14x24
Этажей:
1
Спален:
4
Санузел:
2
Гараж:
Нет
Баня:
Нет
Терраса:
Нет
Панорамные окна:
Нет
Мастер-спальня:
Нет
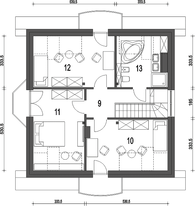
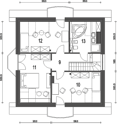
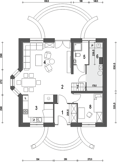
Планировка
Характеристики
- Общая площадь: 283 м2
- Жилая площадь: 180 м2
- Количество этажей: 1
- Гараж: На 2 машины
- Площадь кровли: 400,80 м2
- Размер: 14x24
- Фундамент: Дома с ленточным фундаментом
Отправьте свои контакты и мы расчитаем вам смету
Скорее всего вам подойдут следующие проекты домов:
Проект одноэтажного дома Дом id-115171
Для большой семьи
Дом подходит для:
Дом подходит для:
Проект одноэтажного дома Дом id-121478
Для большой семьи
Дом подходит для:
Дом подходит для:
Проект одноэтажного дома Дом id-126054
Для большой семьи
Дом подходит для:
Дом подходит для:
























