Проект двухэтажного дома Дом id-124856
Дом подходит для:
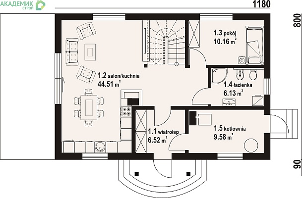
Площадь
139 м 2
Размер дома:
14x12
Этажей:
2
Спален:
3
Санузел:
2
Гараж:
Нет
Баня:
Нет
Терраса:
Нет
Панорамные окна:
Нет
Мастер-спальня:
Нет
Планировка
Характеристики
- Общая площадь: 139 м2
- Жилая площадь: 82 м2
- Количество этажей: 2
- Гараж: На 1 машину
- Площадь кровли: 201,13 м2
- Размер: 14x12
- Фундамент: Дома с ленточным фундаментом
Отправьте свои контакты и мы расчитаем вам смету
Скорее всего вам подойдут следующие проекты домов:
Проект двухэтажного дома Дом id-114662
Семья с двумя детьми
Дом подходит для:
Дом подходит для:
Проект двухэтажного дома Дом id-125898
Семья с двумя детьми
Дом подходит для:
Дом подходит для:
Проект двухэтажного дома Дом id-24730
Для большой семьи
Дом подходит для:
Дом подходит для:

























