Проект двухэтажного дома Дом id-51648
Дом подходит для:
Площадь
0 м 2
Размер дома:
15x10
Этажей:
2
Спален:
4
Санузел:
2
Гараж:
Нет
Баня:
Нет
Терраса:
Нет
Панорамные окна:
Нет
Мастер-спальня:
Нет
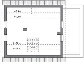
Планировка
Характеристики
- Жилая площадь: 124 м2
- Количество этажей: 2
- Гараж: На 2 машины
- Площадь кровли: 177,41 м2
- Размер: 15x10
- Фундамент: Дома с ленточным фундаментом
Отправьте свои контакты и мы расчитаем вам смету
Скорее всего вам подойдут следующие проекты домов:
Проект двухэтажного дома Дом id-89385
Семья с двумя детьми
Дом подходит для:
Дом подходит для:
Проект двухэтажного дома Дом id-78331
Семья с одним ребенком
Дом подходит для:
Дом подходит для:
Проект двухэтажного дома Дом id-41350
Семья с двумя детьми
Дом подходит для:
Дом подходит для:

















