Проект двухэтажного дома Дом id-51922
Дом подходит для:
Площадь
0 м 2
Размер дома:
7x9
Этажей:
2
Спален:
4
Санузел:
1
Гараж:
Нет
Баня:
Нет
Терраса:
Нет
Панорамные окна:
Нет
Мастер-спальня:
Нет
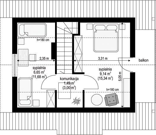
Планировка
Характеристики
- Жилая площадь: 91 м2
- Количество этажей: 2
- Гараж: Без гаража
- Площадь кровли: 135 м2
- Размер: 7x9
- Фундамент: Дома с ленточным фундаментом
Отправьте свои контакты и мы расчитаем вам смету
Скорее всего вам подойдут следующие проекты домов:
Проект двухэтажного дома Дом id-69061
Семья с одним ребенком
Дом подходит для:
Дом подходит для:
Проект двухэтажного дома Дом id-97877
Семья с одним ребенком
Дом подходит для:
Дом подходит для:














