Проект двухэтажного дома Дом id-70609
Дом подходит для:
Площадь
0 м 2
Размер дома:
14x10
Этажей:
2
Спален:
4
Санузел:
2
Гараж:
Нет
Баня:
Нет
Терраса:
Нет
Панорамные окна:
Нет
Мастер-спальня:
Нет
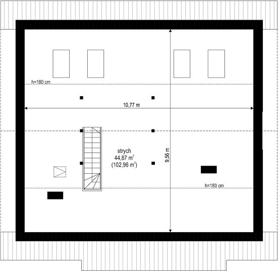
Планировка
Характеристики
- Жилая площадь: 128 м2
- Количество этажей: 2
- Гараж: На 1 машину
- Размер: 14x10
- Фундамент: Дома с ленточным фундаментом
Отправьте свои контакты и мы расчитаем вам смету
Скорее всего вам подойдут следующие проекты домов:
Проект двухэтажного дома Дом id-70149
Семья с одним ребенком
Дом подходит для:
Дом подходит для:
Проект двухэтажного дома Дом id-49650
Семья с двумя детьми
Дом подходит для:
Дом подходит для:
Проект двухэтажного дома Дом id-69298
Семья с одним ребенком
Дом подходит для:
Дом подходит для:





















