Проект одноэтажного дома Дом id-75818
Дом подходит для:
Площадь
172 м 2
Размер дома:
18x14
Этажей:
1
Спален:
5
Санузел:
3
Гараж:
Нет
Баня:
Нет
Терраса:
Нет
Панорамные окна:
Нет
Мастер-спальня:
Нет
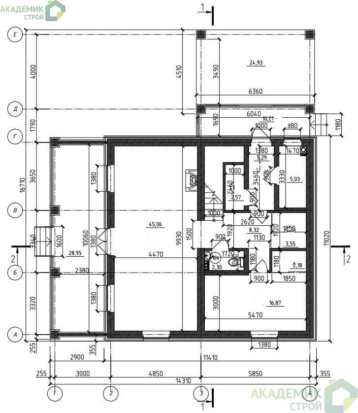
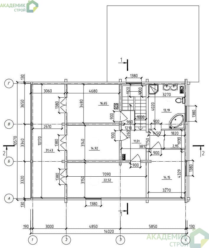
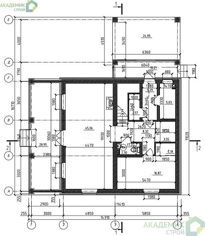
Планировка
Фасады
О проекте
Жильё, вдохновлённое идеалами уюта и оснащённое всем необходимым для комфортной жизни. 172 м² — практичное решение для организации уютного дома. Дом даёт 172 м² для отдыха, творчества и общения. Когда важно пространство и порядок — 3 санузла. Проект включает 5 спален — удобно для семьи. металлочерепица придаёт дому выразительность и надёжность. Конструкция из газобетона обеспечивает прочность и долговечность.Гарантии: 16 лет гарантии
Характеристики
- Общая площадь: 172 м2
- Жилая площадь: 172 м2
- Количество этажей: 1
- Гараж: Без гаража
- Размер: 18x14
- Фундамент: Дома с ленточным фундаментом
Отправьте свои контакты и мы расчитаем вам смету
Скорее всего вам подойдут следующие проекты домов:
Проект одноэтажного дома Дом id-114358
Семья с двумя детьми
Дом подходит для:
Дом подходит для:
Проект одноэтажного дома Дом id-113757
Семья с двумя детьми
Дом подходит для:
Дом подходит для:
Проект одноэтажного дома Дом id-117996
Для большой семьи
Дом подходит для:
Дом подходит для:






















