Проект двухэтажного дома Дом id-79999
Дом подходит для:
Площадь
116 м 2
Размер дома:
11x8
Этажей:
2
Спален:
4
Санузел:
3
Гараж:
Нет
Баня:
Нет
Терраса:
Нет
Панорамные окна:
Нет
Мастер-спальня:
Нет
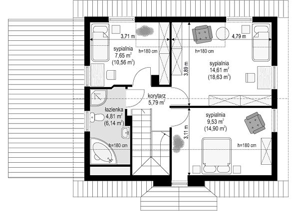
Планировка
Характеристики
- Общая площадь: 116 м2
- Жилая площадь: 86 м2
- Количество этажей: 2
- Гараж: Без гаража
- Площадь кровли: 137,70 м2
- Размер: 11x8
- Фундамент: Дома с ленточным фундаментом
Отправьте свои контакты и мы расчитаем вам смету
Скорее всего вам подойдут следующие проекты домов:
Проект двухэтажного дома Дом id-82494
Для большой семьи
Дом подходит для:
Дом подходит для:
Проект двухэтажного дома Дом id-93796
Для большой семьи
Дом подходит для:
Дом подходит для:
Проект двухэтажного дома Дом id-66596
Для большой семьи
Дом подходит для:
Дом подходит для:

























