Проект одноэтажного дома Дом id-81643
Дом подходит для:
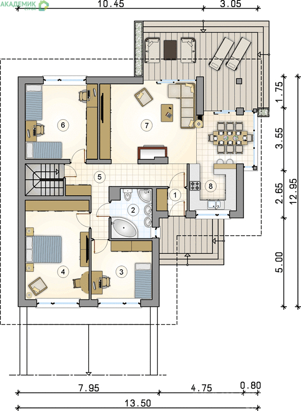
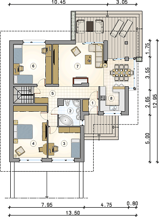
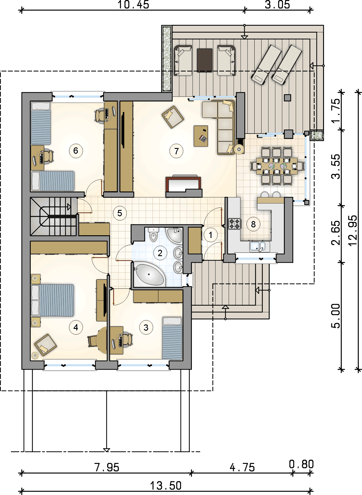
Площадь
283 м 2
Размер дома:
14x13
Этажей:
1
Спален:
3
Санузел:
1
Гараж:
Нет
Баня:
Нет
Терраса:
Нет
Панорамные окна:
Нет
Мастер-спальня:
Нет
Планировка
Характеристики
- Общая площадь: 283 м2
- Жилая площадь: 107 м2
- Количество этажей: 1
- Гараж: На 2 машины
- Площадь кровли: 226 м2
- Размер: 14x13
- Фундамент: Дома с ленточным фундаментом
Отправьте свои контакты и мы расчитаем вам смету
Скорее всего вам подойдут следующие проекты домов:
Проект одноэтажного дома Дом id-61431
Семья с двумя детьми
Дом подходит для:
Дом подходит для:
Проект одноэтажного дома Дом id-77167
Семья с двумя детьми
Дом подходит для:
Дом подходит для:
Проект одноэтажного дома Дом id-58033
Семья с двумя детьми
Дом подходит для:
Дом подходит для:

























