Проект двухэтажного дома Дом id-83887
Дом подходит для:
Площадь
69 м 2
Размер дома:
7x8
Этажей:
2
Спален:
2
Санузел:
1
Гараж:
Нет
Баня:
Нет
Терраса:
Нет
Панорамные окна:
Нет
Мастер-спальня:
Нет
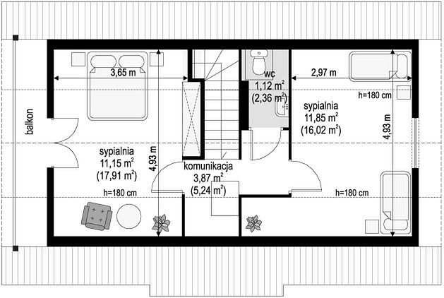
Планировка
Характеристики
- Общая площадь: 69 м2
- Жилая площадь: 52 м2
- Количество этажей: 2
- Гараж: Без гаража
- Площадь кровли: 99,81 м2
- Размер: 7x8
- Фундамент: Дома с ленточным фундаментом
Отправьте свои контакты и мы расчитаем вам смету
Скорее всего вам подойдут следующие проекты домов:
Проект двухэтажного дома Дом id-112885
Семья с одним ребенком
Дом подходит для:
Дом подходит для:
Проект двухэтажного дома Дом id-112879
Семья с одним ребенком
Дом подходит для:
Дом подходит для:
Проект двухэтажного дома Дом id-125009
Семья с одним ребенком
Дом подходит для:
Дом подходит для:

























