Проект двухэтажного дома Дом id-86449
Дом подходит для:
Площадь
0 м 2
Размер дома:
14x12
Этажей:
2
Спален:
5
Санузел:
2
Гараж:
Нет
Баня:
Нет
Терраса:
Нет
Панорамные окна:
Нет
Мастер-спальня:
Нет
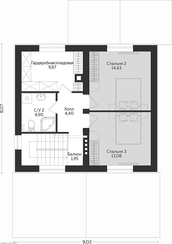
Планировка
Характеристики
- Жилая площадь: 171 м2
- Количество этажей: 2
- Гараж: На 1 машину
- Площадь кровли: 216,30 м2
- Размер: 14x12
- Фундамент: Дома с ленточным фундаментом
Отправьте свои контакты и мы расчитаем вам смету
Скорее всего вам подойдут следующие проекты домов:
Проект двухэтажного дома Компактный коттедж из газобетона по проекту М415
Семья с двумя детьми
Дом подходит для:
Дом подходит для:
Дом подходит для:
Проект двухэтажного дома КД-118
Для большой семьи
Дом подходит для:
Дом подходит для:










