Проект двухэтажного дома Дом id-89212
Площадь
402 м 2
Размер дома:
22x11
Этажей:
2
Спален:
5
Санузел:
0
Гараж:
Нет
Баня:
Нет
Терраса:
Нет
Панорамные окна:
Нет
Мастер-спальня:
Нет
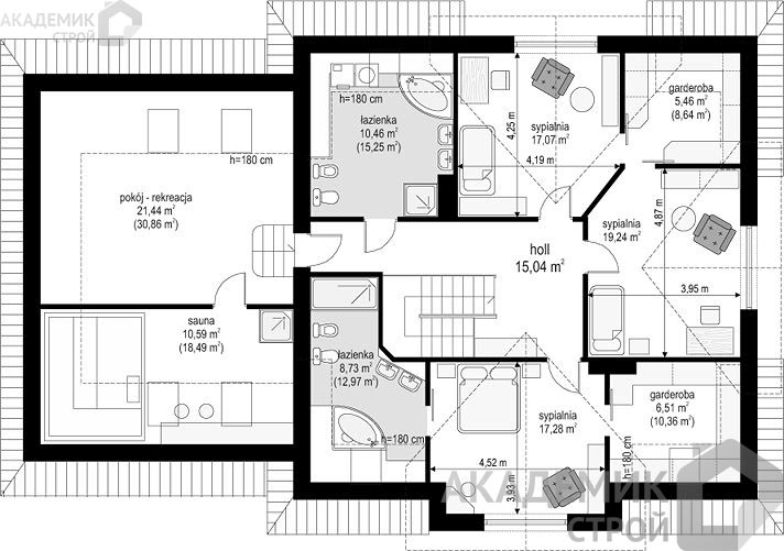
Планировка
О проекте
Двухэтажный дом с пятью спальнями и гаражом на две машины. Простор, стиль и удобство для большой семьи, предпочитающей современную архитектуру.Гарантии: 16 лет гарантии
Характеристики
- Общая площадь: 402 м2
- Жилая площадь: 262 м2
- Количество этажей: 2
- Гараж: На 2 машины
- Площадь кровли: 308,40 м2
- Размер: 22x11
- Фундамент: Дома с ленточным фундаментом
Отправьте свои контакты и мы расчитаем вам смету
Скорее всего вам подойдут следующие проекты домов:
Проект двухэтажного дома Дом id-57002
Для большой семьи
Дом подходит для:
Дом подходит для:
Проект двухэтажного дома Дом id-84908
Для большой семьи
Дом подходит для:
Дом подходит для:
Проект двухэтажного дома Дом id-54086
Для большой семьи
Дом подходит для:
Дом подходит для:





















