Проект двухэтажного дома Дом id-96639
Дом подходит для:
Площадь
370 м 2
Размер дома:
18x15
Этажей:
2
Спален:
4
Санузел:
3
Гараж:
Нет
Баня:
Нет
Терраса:
Нет
Панорамные окна:
Нет
Мастер-спальня:
Нет
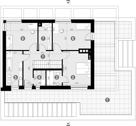
Планировка
Фасады
О проекте
Внушительный дом из газобетона площадью 370 м² с четырьмя комнатами и тремя санузлами — это выбор для большой семьи, ценящей простор и удобство. Гараж на две машины позволяет хранить автомобили в безопасности, а продуманная планировка обеспечивает комфортное зонирование пространства. Современный фасад, большие окна и качественные материалы делают этот дом настоящим украшением участка и гарантируют долговечность строения.Гарантии: 16 лет гарантии
Характеристики
- Общая площадь: 370 м2
- Жилая площадь: 186 м2
- Количество этажей: 2
- Гараж: На 2 машины
- Площадь кровли: 111 м2
- Размер: 18x15
- Фундамент: Дома с ленточным фундаментом
Отправьте свои контакты и мы расчитаем вам смету
Скорее всего вам подойдут следующие проекты домов:
Проект двухэтажного дома Дом id-110178
Для большой семьи
Дом подходит для:
Дом подходит для:
Проект двухэтажного дома Дом id-115538
Для большой семьи
Дом подходит для:
Дом подходит для:
Проект двухэтажного дома Дом id-111689
Для большой семьи
Дом подходит для:
Дом подходит для:





















