Проект двухэтажного дома Дом из бревна ДБР-087
Площадь
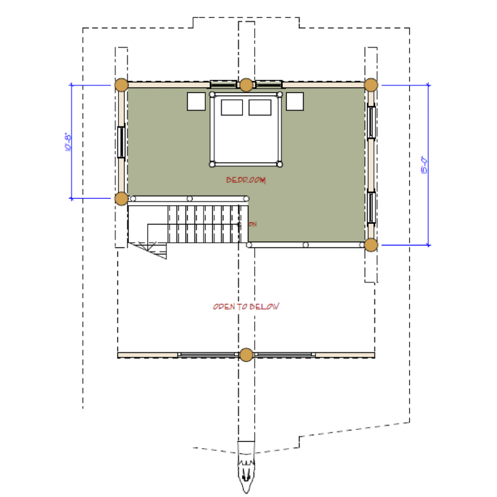
87 м 2
Размер дома:
Этажей:
2
Спален:
1
Санузел:
0
Гараж:
Нет
Баня:
Нет
Терраса:
Нет
Панорамные окна:
Нет
Мастер-спальня:
Нет
О проекте
В этом здании каждая деталь подчеркивает индивидуальность и удобство.В этом доме — 87 м² по-настоящему полезной площади. Конструкция из бревна обеспечивает прочность и долговечность. Архитектура выполнена в стиле дома в стиле кантри. металлочерепица придаёт дому выразительность и надёжность.Характеристики
- Общая площадь: 87 м2
- Количество этажей: 2
- Стиль, разновидность: Дома в стиле Кантри
- Форма: Квадратные дома
- Тип кровли: Дома с двускатной крышей
- Отделка: Без отделки
Отправьте свои контакты и мы расчитаем вам смету
Скорее всего вам подойдут следующие проекты домов:
Дом подходит для:
Дом подходит для:
Дом подходит для:












