Проект двухэтажного дома Дом из бруса 11х14 ДБ-117
Площадь
176 м 2
Размер дома:
Этажей:
2
Спален:
3
Санузел:
0
Гараж:
Нет
Баня:
Нет
Терраса:
Нет
Панорамные окна:
Нет
Мастер-спальня:
Нет
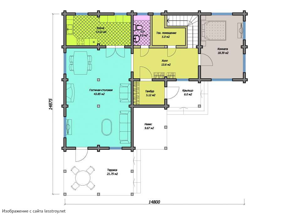
О проекте
Дом, где объемы играют, но не подавляют. Жить удобно на 176 м² — здесь всё на своих местах. Архитектура выполнена в стиле дома в классическом стиле. Наличие 3 спальни удовлетворит запросы семьи с детьми. Двухэтажная уютная планировка создаёт идеальные условия для жизни всей семьи.Характеристики
- Общая площадь: 176 м2
- Количество этажей: 2
- Стиль, разновидность: Дома в ином стиле
- Форма: Г-образные дома
- Тип кровли: Дома с двускатной крышей
- Отделка: Без отделки
Отправьте свои контакты и мы расчитаем вам смету
Скорее всего вам подойдут следующие проекты домов:
Дом подходит для:
Дом подходит для:
Дом подходит для:









