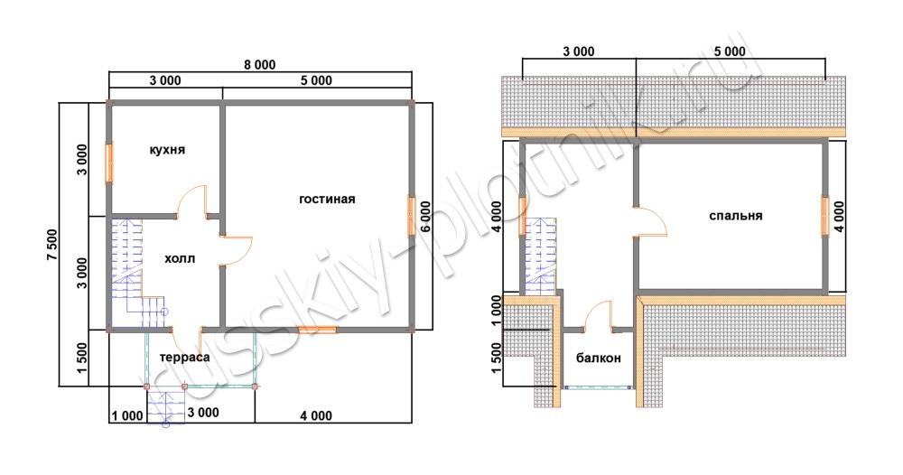
Проект одноэтажного дома Дом из бруса 6х8 (9БР)
Площадь
86 м 2
Размер дома:
6x8
Этажей:
1
Спален:
2
Санузел:
0
Гараж:
Нет
Баня:
Нет
Терраса:
Нет
Панорамные окна:
Нет
Мастер-спальня:
Нет
О проекте
Дом, где современные технологии создают атмосферу старинного семейного гнезда. 86 м² — и ни один метр не пропадает зря. В качестве кровли использована ондулин — материал, проверенный временем. Одноэтажная просторная планировка обеспечивает комфортную навигацию внутри дома. Дом спроектирован в духе дома в стиле русский.Характеристики
- Общая площадь: 86 м2
- Количество этажей: 1
- Стиль, разновидность: Дома в стиле Русский
- Форма: Прямоугольные дома
- Тип кровли: Дома с многощипцовой крышей
- Отделка: Без отделки
- Размер: 6x8



