Проект двухэтажного дома Дом из бруса 6х9 с кукушкой проект ДБ-76
Площадь
82 м 2
Размер дома:
6x9
Этажей:
2
Спален:
2
Санузел:
0
Гараж:
Нет
Баня:
Нет
Терраса:
Нет
Панорамные окна:
Нет
Мастер-спальня:
Нет
О проекте
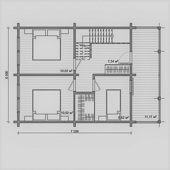
Дом, в котором приятно находиться — гармоничный, удобный и стильный.96 м² идеально подойдут для семейных посиделок и личного пространства. Двухэтажная уютная планировка обеспечивает комфортную навигацию внутри дома. Конструкция из бруса обеспечивает прочность и долговечность. Крыша из рубероид подчёркивает современный облик дома.Характеристики
- Общая площадь: 82 м2
- Количество этажей: 2
- Стиль, разновидность: Дома в ином стиле
- Форма: Прямоугольные дома
- Тип кровли: Дома с многощипцовой крышей
- Отделка: Без отделки
- Размер: 6x9











