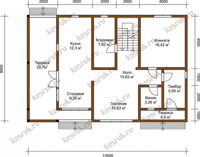
Проект одноэтажного дома Дом из бруса 8х10м..Проект 52Бр
Площадь
160 м 2
Размер дома:
8x10
Этажей:
1
Спален:
2
Санузел:
0
Гараж:
Нет
Баня:
Нет
Терраса:
Нет
Панорамные окна:
Нет
Мастер-спальня:
Нет
О проекте
Архитектура отражает скорость времени и неторопливость семейных вечеров.Рационально распределённые 173 м² делают жильё удобным. Проект включает 4 спальни — удобно для семьи. Стены из каркаса хорошо держат тепло и защищают от шума. Крыша из металлочерепица подчёркивает современный облик дома.Характеристики
- Общая площадь: 160 м2
- Количество этажей: 1
- Стиль, разновидность: Дома в ином стиле
- Форма: Прямоугольные дома
- Тип кровли: Дома с иной крышей
- Отделка: Без отделки
- Размер: 8x10
Отправьте свои контакты и мы расчитаем вам смету
Скорее всего вам подойдут следующие проекты домов:
Проект одноэтажного дома Дом из профилированного бруса 9 х 11
Семья с одним ребенком
Дом подходит для:
Дом подходит для:
Дом подходит для:
Дом подходит для:













