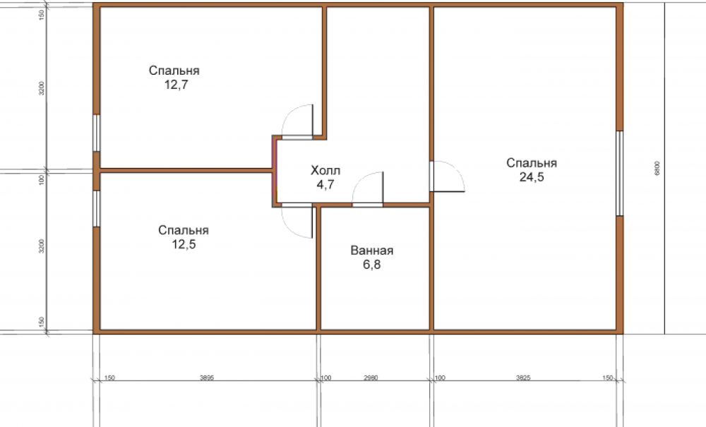
Проект одноэтажного дома Дом из бруса ДБ-50 7х11
Площадь
130 м 2
Размер дома:
7x11
Этажей:
1
Спален:
0
Санузел:
0
Гараж:
Нет
Баня:
Нет
Терраса:
Нет
Панорамные окна:
Нет
Мастер-спальня:
Нет
О проекте
Проект, в котором нет ничего лишнего, но есть всё необходимое.Интерьер выстраивается вокруг 130 м² уюта и свободы. Материал кровли — рубероид, что добавляет зданию индивидуальность. Брус делает дом надёжным при любой погоде. Архитектура выполнена в стиле дома в классическом стиле.Характеристики
- Общая площадь: 130 м2
- Количество этажей: 1
- Стиль, разновидность: Дома в ином стиле
- Тип кровли: Дома с иной крышей
- Отделка: Без отделки
- Размер: 7x11








