Проект двухэтажного дома Дом из бруса Вояж
Площадь
152 м 2
Размер дома:
Этажей:
2
Спален:
4
Санузел:
0
Гараж:
Нет
Баня:
Нет
Терраса:
Нет
Панорамные окна:
Нет
Мастер-спальня:
Нет
О проекте
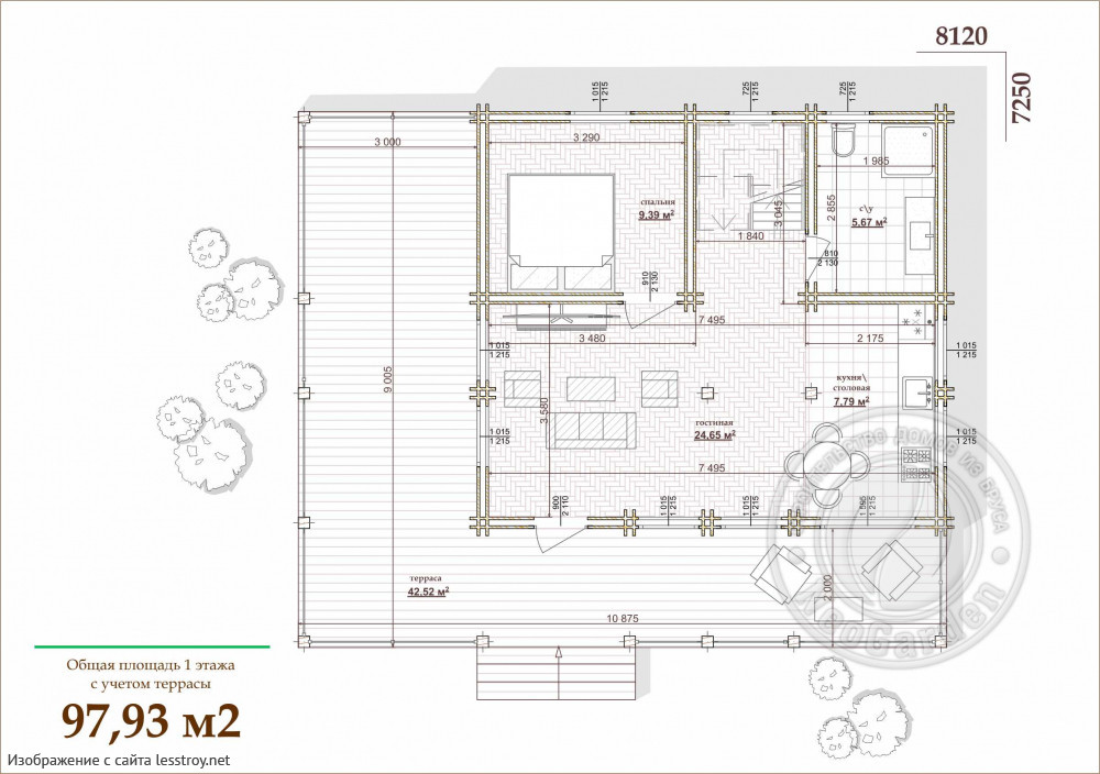
Брусовый дом площадью 152 м² сочетает в себе функциональность и комфорт. Два этажа с четырьмя спальнями делают его удобным для семьи. Материал стен придает дому натуральность. Проект идеален для загородного проживания.Характеристики
- Общая площадь: 152 м2
- Количество этажей: 2
- Стиль, разновидность: Дома в ином стиле
- Форма: Прямоугольные дома
- Тип кровли: Дома с двускатной крышей
- Отделка: Без отделки
Отправьте свои контакты и мы расчитаем вам смету
Скорее всего вам подойдут следующие проекты домов:
Дом подходит для:
Дом подходит для:
Дом подходит для:








