Проект одноэтажного дома Дом из клееного бруса БАСТИОН-168 от компании МОГУТА
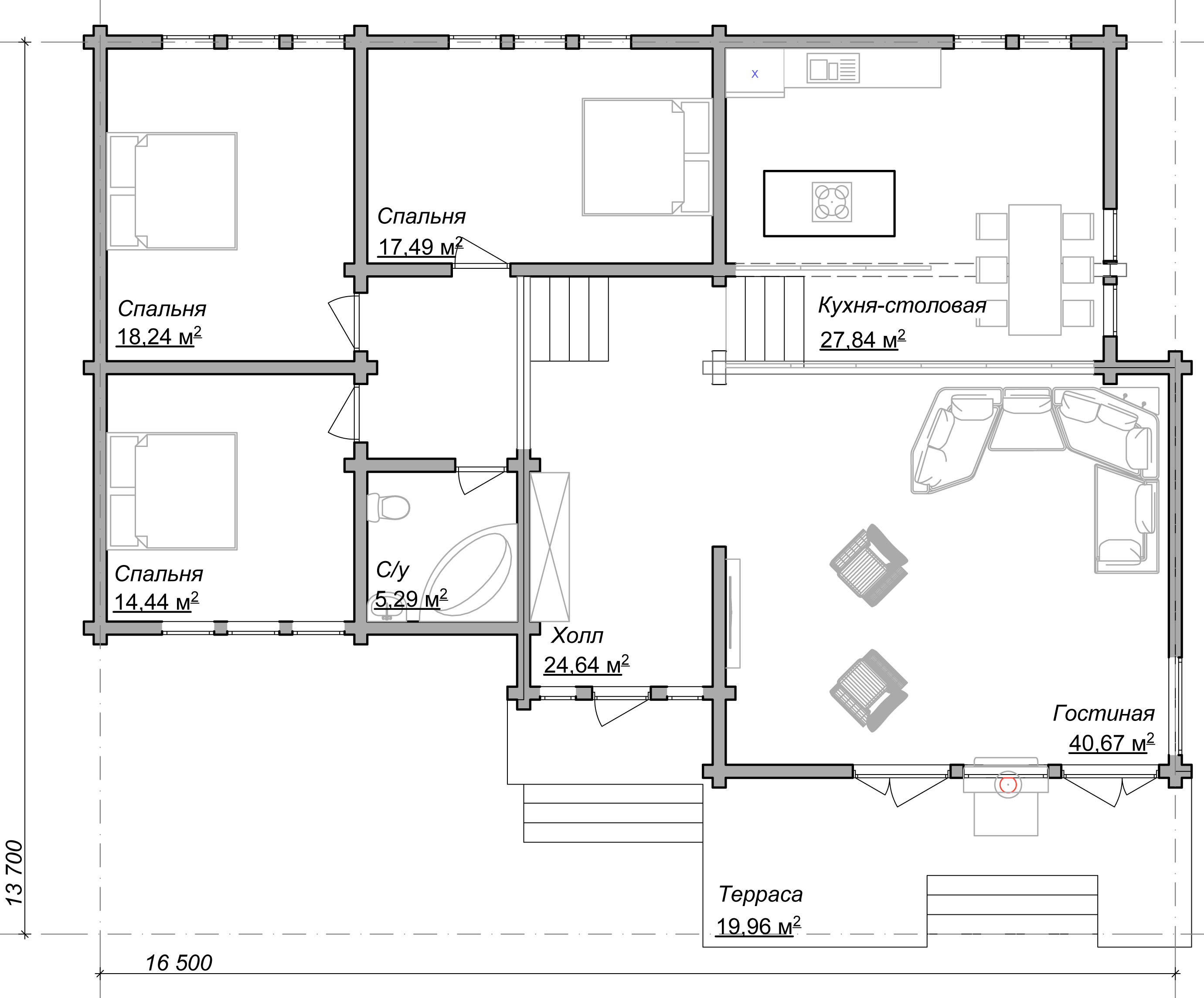
Площадь
169 м 2
Размер дома:
Этажей:
1
Спален:
3
Санузел:
0
Гараж:
Нет
Баня:
Нет
Терраса:
Нет
Панорамные окна:
Нет
Мастер-спальня:
Нет
О проекте
Проект учитывает шумоподавление для спокойной обстановки.96 м² — площадь, где возможно всё: от отдыха до работы. Количество спален — 2, делая планировку гибкой. Двухэтажная рациональная планировка делает зонирование более логичным. Бруса делает дом надёжным при любой погоде.Характеристики
- Общая площадь: 169 м2
- Количество этажей: 1
- Стиль, разновидность: Финские дома
- Форма: Прямоугольные дома
- Тип кровли: Дома с полувальмовой крышей (полущипцовой)
- Отделка: Без отделки
Отправьте свои контакты и мы расчитаем вам смету
Скорее всего вам подойдут следующие проекты домов:
Дом подходит для:
Дом подходит для:
Дом подходит для:






