Проект двухэтажного дома Дом из клееного бруса Шале-278
Площадь
278 м 2
Размер дома:
Этажей:
2
Спален:
3
Санузел:
0
Гараж:
Нет
Баня:
Нет
Терраса:
Нет
Панорамные окна:
Нет
Мастер-спальня:
Нет
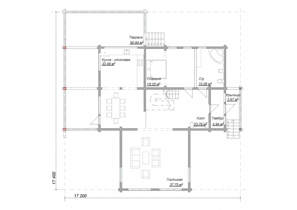
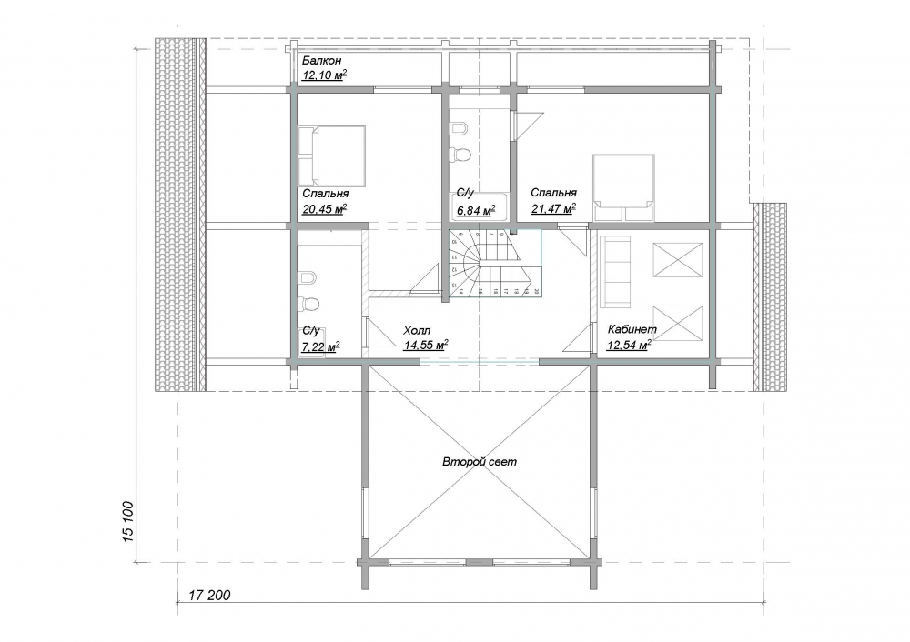
О проекте
Пространство наполнено естественным светом и свежим воздухом. Чёткая логика планировки на 98 м². Количество спален — 2, делая планировку гибкой. Конструкция из газобетон обеспечивает прочность и долговечность. В качестве кровли использована металлочерепица — материал, проверенный временем.Характеристики
- Общая площадь: 278 м2
- Количество этажей: 2
- Стиль, разновидность: Дома в стиле Шале
- Форма: Прямоугольные дома
- Тип кровли: Дома с двускатной крышей
- Отделка: Без отделки
Отправьте свои контакты и мы расчитаем вам смету
Скорее всего вам подойдут следующие проекты домов:
Дом подходит для:
Дом подходит для:
Дом подходит для:











