Проект одноэтажного дома Дом из оцилиндрованного бревна 5,0х5,0 м под ключ (проект № 3 ИСТЬБА)
Площадь
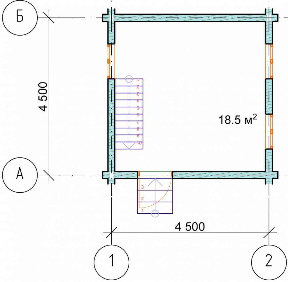
37 м 2
Размер дома:
5x5
Этажей:
1
Спален:
2
Санузел:
0
Гараж:
Нет
Баня:
Нет
Терраса:
Нет
Панорамные окна:
Нет
Мастер-спальня:
Нет
О проекте
Этот дом из натурального бревна площадью 37 кв.м — идеальный вариант для романтиков, ценящих естественность и простоту. Природный материал способствует созданию уникального микроклимата, поддерживая уют в любую погоду. Компактность строения органично вписывается в ландшафт участка, создавая ощущение уединенности. Внутренняя планировка подходит для мини-гостиной и спокойного отдыха, а ароматы древесины расслабляют после активного дняХарактеристики
- Общая площадь: 37 м2
- Количество этажей: 1
- Стиль, разновидность: Дома в ином стиле
- Форма: Квадратные дома
- Тип кровли: Дома с иной крышей
- Отделка: Без отделки
- Размер: 5x5
Отправьте свои контакты и мы расчитаем вам смету
Скорее всего вам подойдут следующие проекты домов:
Проект одноэтажной бани №4
Семья с одним ребенком
Баня подходит для:
Баня подходит для:




