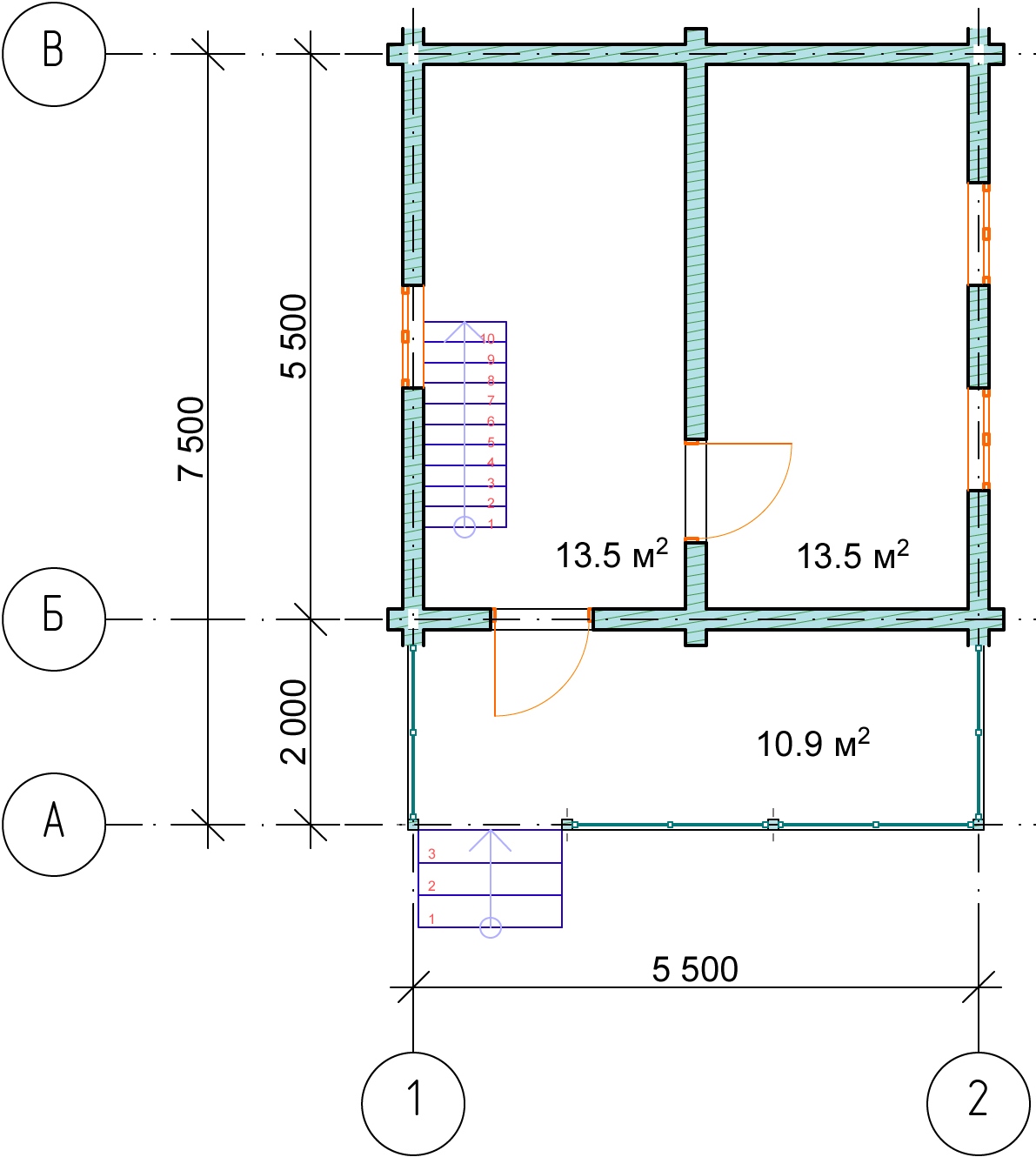
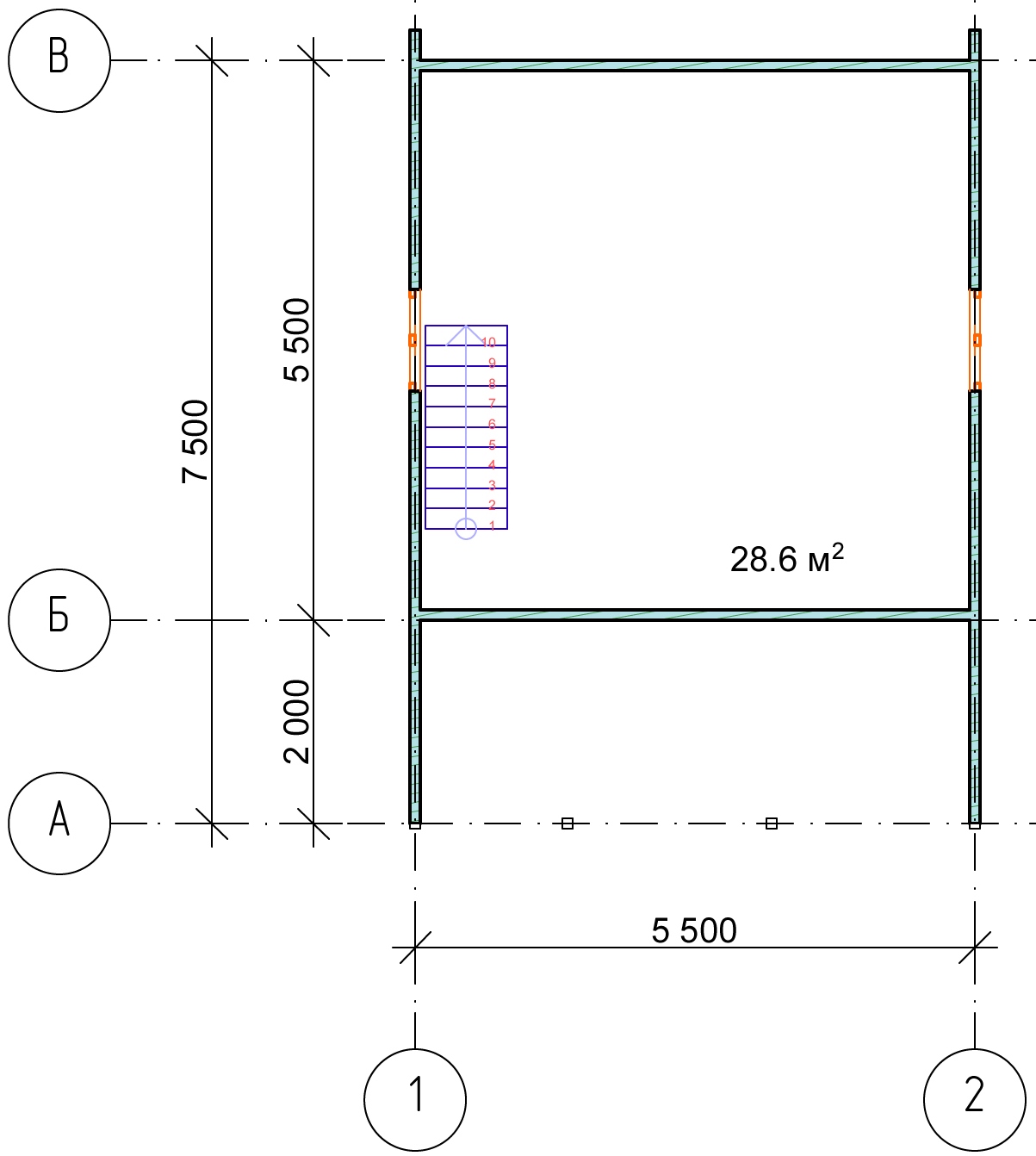
Проект двухэтажного дома Дом из оцилиндрованного бревна 6,0х6,0 м с террасой 2,0х5,5 м (проект № 8 Серёженька)
Площадь
66 м 2
Размер дома:
6x8
Этажей:
2
Спален:
2
Санузел:
0
Гараж:
Нет
Баня:
Нет
Терраса:
Нет
Панорамные окна:
Нет
Мастер-спальня:
Нет
О проекте
Очарование классической русской дачи воплощено в этом небольшом, но уютном доме. Теплым сердцем выступает натуральное бревно в сочетании с профнастилом, что создает оптимальные условия для загородного отдыха. Площадь 66 м² позволяет разместиться с комфортом целой семье или компании друзей. Каждая деталь здесь работает на создание атмосферы уюта и тепла.Характеристики
- Общая площадь: 66 м2
- Количество этажей: 2
- Стиль, разновидность: Дома в ином стиле
- Форма: Квадратные дома
- Тип кровли: Дома с четырехскатной крышей (вальмовой)
- Отделка: Без отделки
- Размер: 6x8
Отправьте свои контакты и мы расчитаем вам смету
Скорее всего вам подойдут следующие проекты домов:
Дом подходит для:
Дом подходит для:
Проект двухэтажного дома Дом с мансардой из оцилиндрованного бревна СКАЗКА - 78м2 (7м х 5,5м)
Семья с одним ребенком
Дом подходит для:
Дом подходит для:












