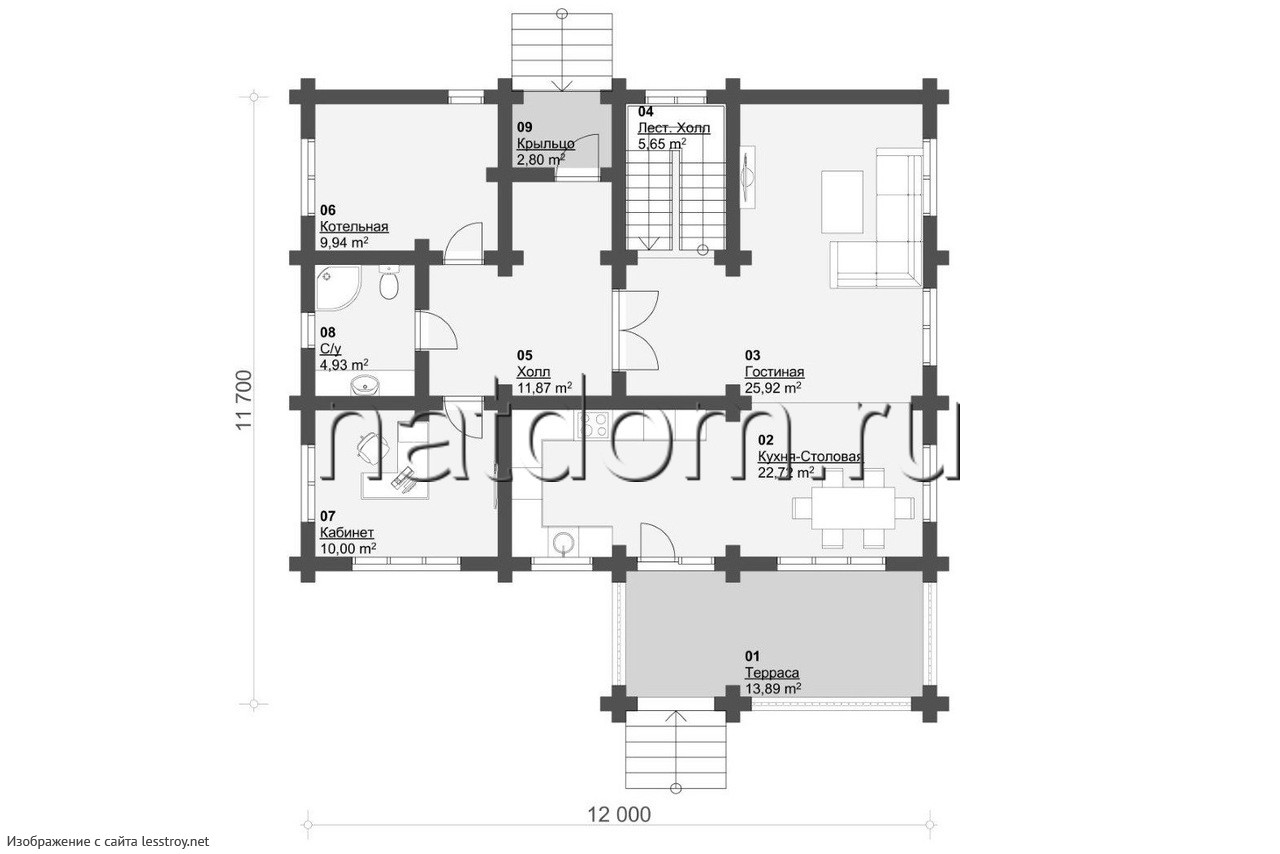
Проект двухэтажного дома Дом из оцилиндрованного бревна ДК-195
Площадь
195 м 2
Размер дома:
12x12
Этажей:
2
Спален:
4
Санузел:
0
Гараж:
Нет
Баня:
Нет
Терраса:
Нет
Панорамные окна:
Нет
Мастер-спальня:
Нет
О проекте
Бревенчатый дом площадью 195 м² сочетает в себе rustic-шарм и современные технологии. Массивные стены из дерева создают уют и защищают от непогоды. Просторные комнаты с высокими потолками добавляют ощущение свободы. Это проект для тех, кто хочет жить в гармонии с природой.Характеристики
- Общая площадь: 195 м2
- Количество этажей: 2
- Стиль, разновидность: Дома в стиле Русский
- Форма: Квадратные дома
- Тип кровли: Дома с двускатной крышей
- Отделка: Без отделки
- Размер: 12x12
Отправьте свои контакты и мы расчитаем вам смету
Скорее всего вам подойдут следующие проекты домов:
Дом подходит для:
Дом подходит для:
Дом подходит для:











