Проект двухэтажного дома Дом из профбруса Проект №4
Площадь
89 м 2
Размер дома:
7x7
Этажей:
2
Спален:
2
Санузел:
0
Гараж:
Нет
Баня:
Нет
Терраса:
Нет
Панорамные окна:
Нет
Мастер-спальня:
Нет
О проекте
Стильный и комфортный дом с идеальной планировкой, где каждая деталь подчинена гармонии, создавая пространство для вашей мечты.63 м² — это возможность для простора и уюта одновременно. Это двухэтажная структура, которая делает зонирование более логичным. Ондулин придаёт дому выразительность и надёжность. Дом спроектирован в духе дома в классическом стиле.Характеристики
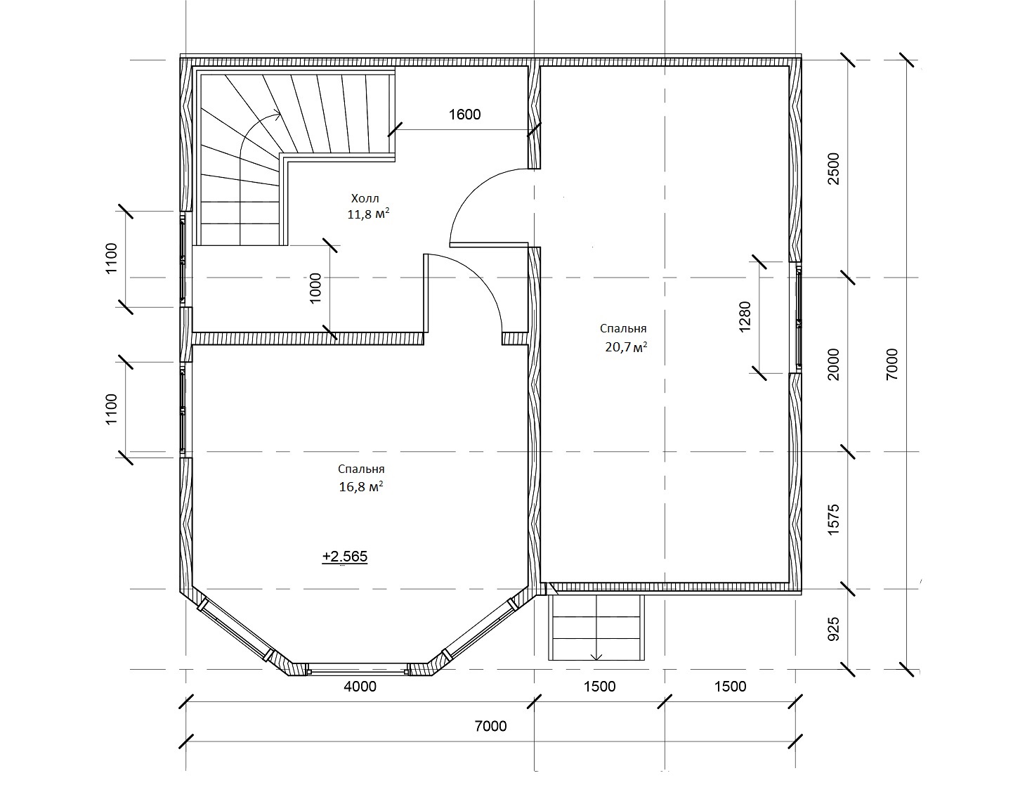
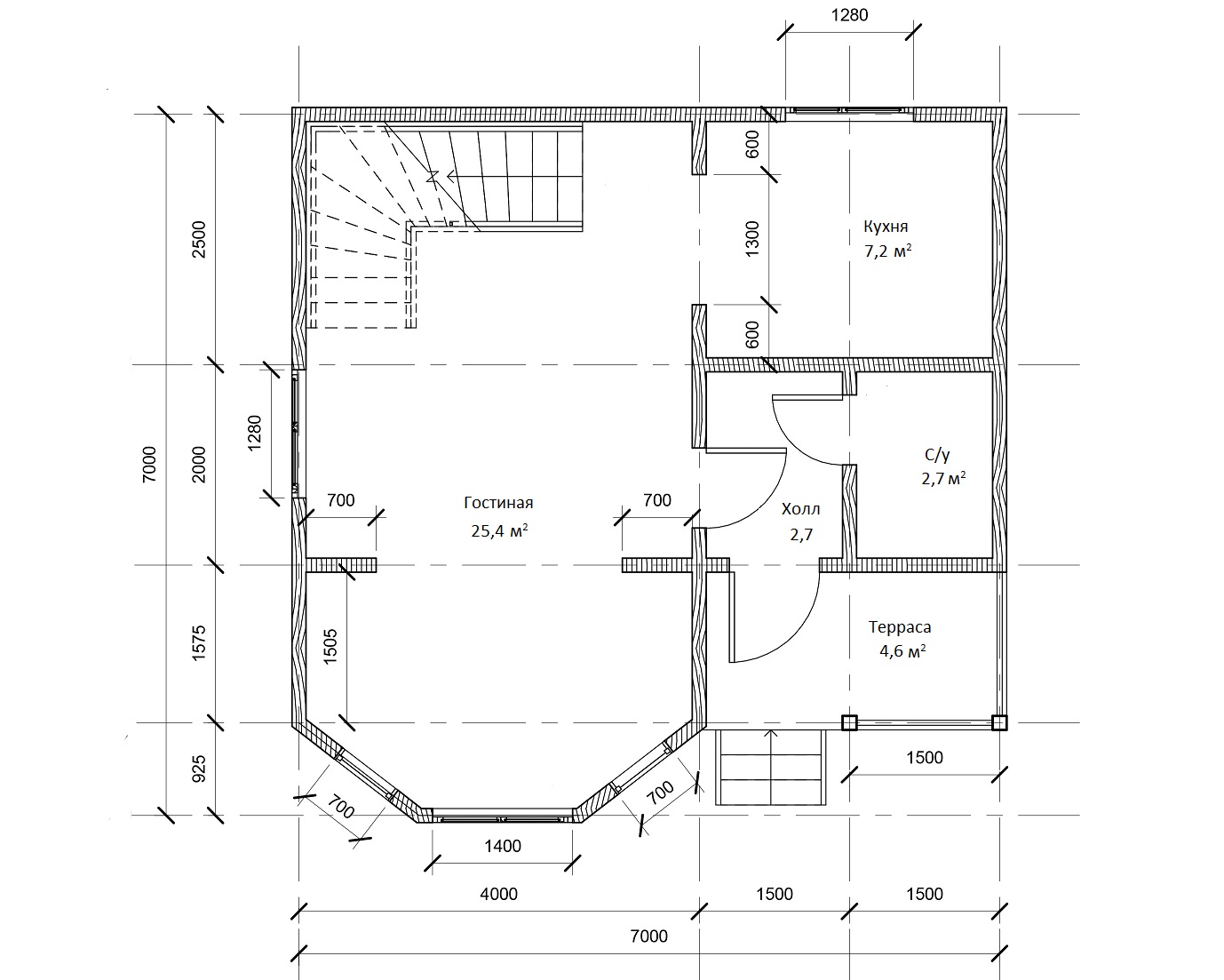
- Общая площадь: 89 м2
- Количество этажей: 2
- Стиль, разновидность: Дома в ином стиле
- Форма: Прямоугольные дома
- Тип кровли: Дома с многощипцовой крышей
- Отделка: Без отделки
- Размер: 7x7
Отправьте свои контакты и мы расчитаем вам смету
Скорее всего вам подойдут следующие проекты домов:
Дом подходит для:
Дом подходит для:
Дом подходит для:













