Проект двухэтажного дома Дом из профбруса Проект №8
Площадь
78 м 2
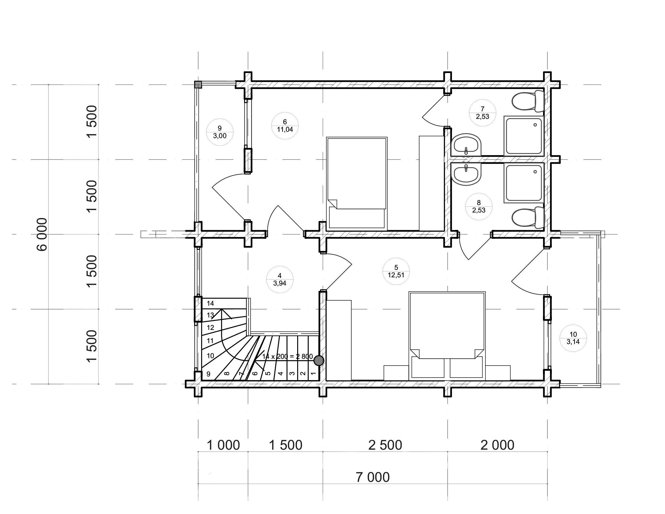
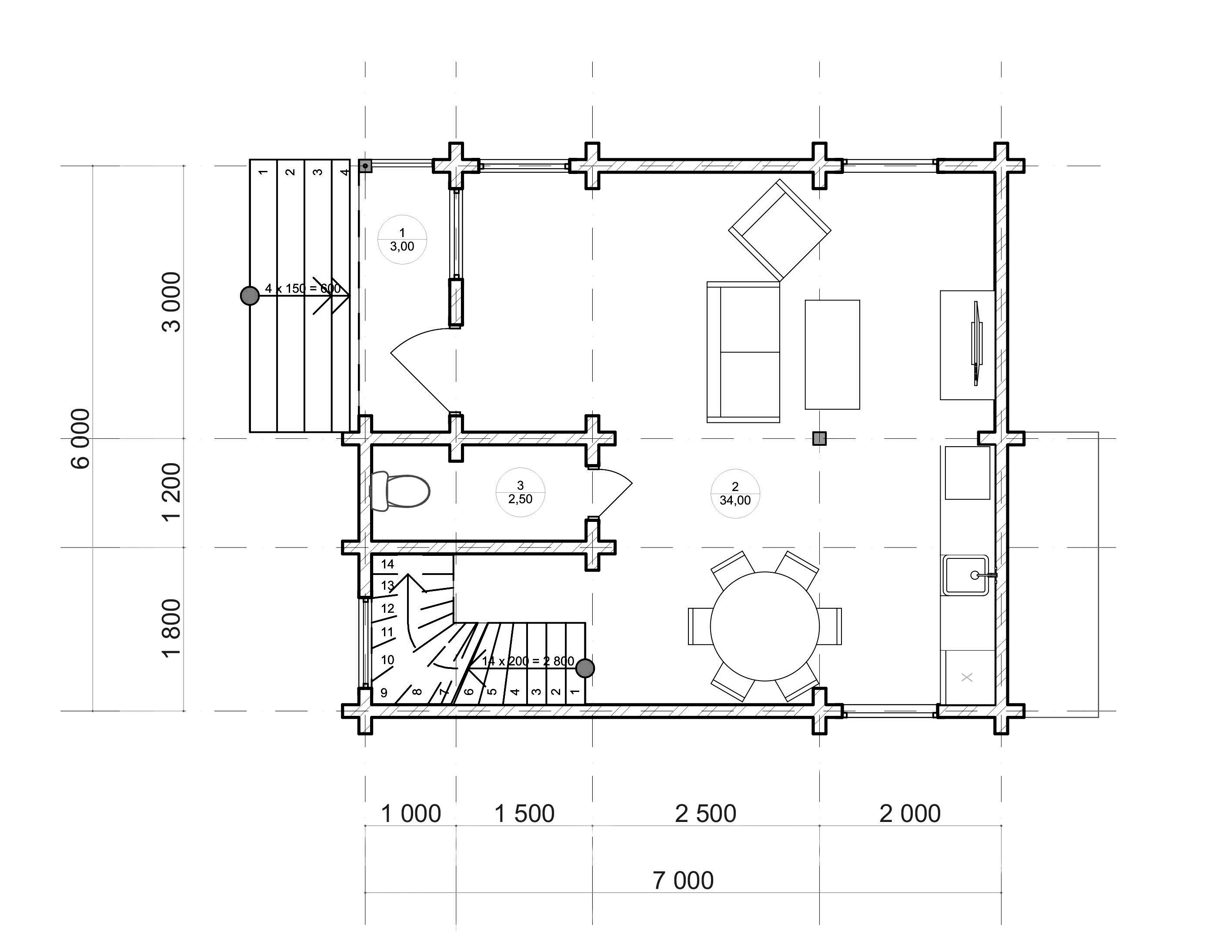
Размер дома:
6x7
Этажей:
2
Спален:
2
Санузел:
0
Гараж:
Нет
Баня:
Нет
Терраса:
Нет
Панорамные окна:
Нет
Мастер-спальня:
Нет
О проекте
Продуманный до мелочей интерьер, который делает быт легче, а жизнь — приятнее.Дом предлагает 192 м² рационально организованного интерьера. Конструкция из керамоблока обеспечивает прочность и долговечность. металлочерепица придаёт дому выразительность и надёжность. Дом спроектирован в духе дома в классическом стиле.Характеристики
- Общая площадь: 78 м2
- Количество этажей: 2
- Стиль, разновидность: Финские дома
- Форма: Прямоугольные дома
- Тип кровли: Дома с двускатной крышей
- Отделка: Без отделки
- Размер: 6x7
Отправьте свои контакты и мы расчитаем вам смету
Скорее всего вам подойдут следующие проекты домов:
Дом подходит для:
Дом подходит для:
Дом подходит для:









