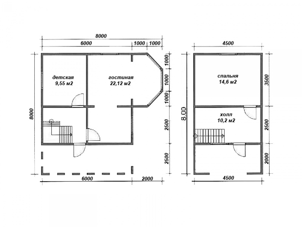
Проект одноэтажного дома Дом из профилированного бруса 8 х 8 Снижение цены!!!
Площадь
63 м 2
Размер дома:
8x8
Этажей:
1
Спален:
2
Санузел:
0
Гараж:
Нет
Баня:
Нет
Терраса:
Нет
Панорамные окна:
Нет
Мастер-спальня:
Нет
О проекте
Дом, где панорамные окна открывают вид не только на пейзаж, но и на семейную жизнь. Рационально распределённые 63 м² делают жильё удобным. Одноэтажная эргономичная планировка разделяет приватные и общественные зоны. В доме предусмотрено 2 спальни, что важно для комфорта. Стены из Брус хорошо держат тепло и защищают от шума.Характеристики
- Общая площадь: 63 м2
- Количество этажей: 1
- Стиль, разновидность: Дома в ином стиле
- Тип кровли: Дома с иной крышей
- Отделка: Без отделки
- Размер: 8x8











