Проект двухэтажного дома Дом из профилированного бруса Бисерово ДБ-54
Площадь
82 м 2
Размер дома:
8x8
Этажей:
2
Спален:
2
Санузел:
0
Гараж:
Нет
Баня:
Нет
Терраса:
Нет
Панорамные окна:
Нет
Мастер-спальня:
Нет
О проекте
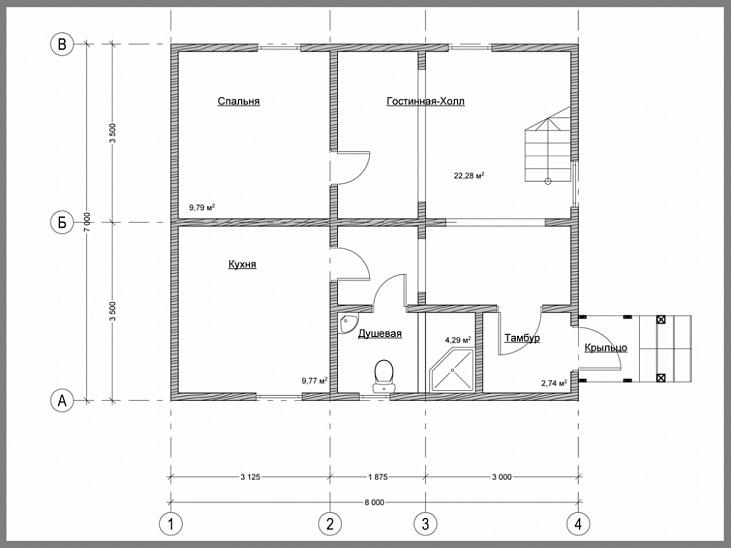
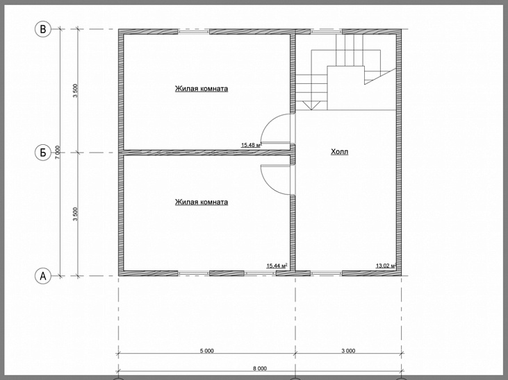
Уютный дом площадью 82 м² из профилированного бруса идеален для небольшой семьи. Две спальни и два этажа обеспечивают комфортное проживание. Теплота дерева и светлые интерьеры создают атмосферу уюта. Это надежное и стильное решение для загородного отдыха.Характеристики
- Общая площадь: 82 м2
- Количество этажей: 2
- Стиль, разновидность: Дома в ином стиле
- Форма: Прямоугольные дома
- Тип кровли: Дома с мансардной крышей
- Отделка: Без отделки
- Размер: 8x8
Отправьте свои контакты и мы расчитаем вам смету
Скорее всего вам подойдут следующие проекты домов:
Проект двухэтажного дома Дом 6х8 м с мансардной крышей и кухней-гостиной
Для большой семьи
Дом подходит для:
Дом подходит для:
Дом подходит для:
Проект двухэтажного дома Проект дома из профилированного бруса 9,0 х 11,0 м «Кипень»
Семья с двумя детьми
Дом подходит для:
Дом подходит для:














