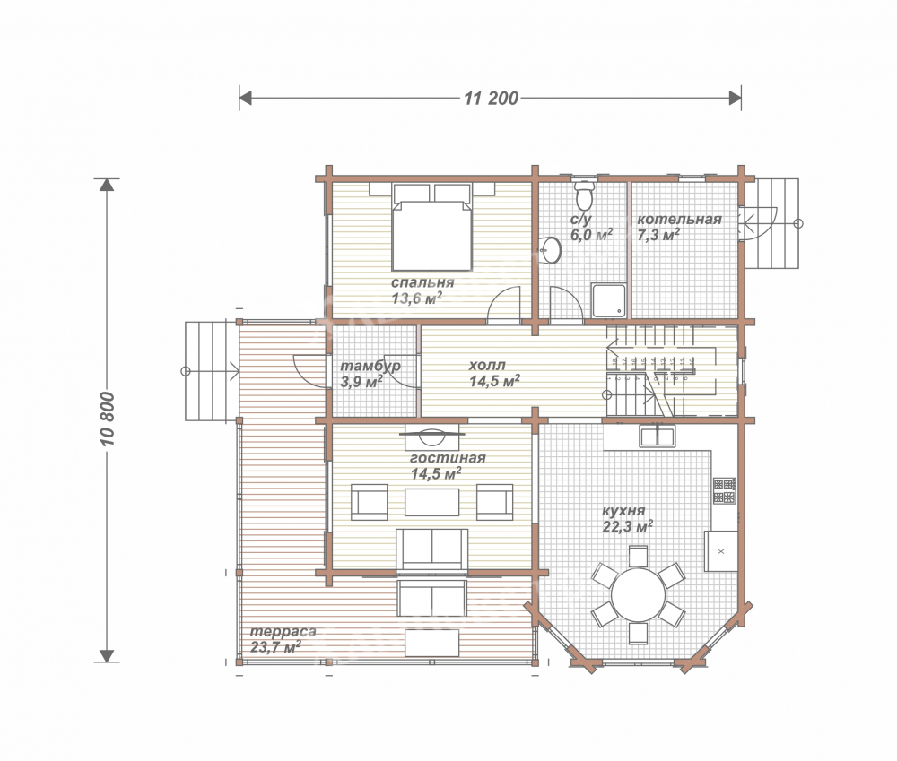
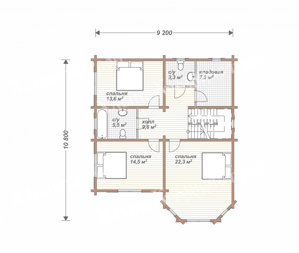
Проект двухэтажного дома Дом из профилированного бруса ХСМ-98
Площадь
182 м 2
Размер дома:
11x11
Этажей:
2
Спален:
4
Санузел:
0
Гараж:
Нет
Баня:
Нет
Терраса:
Нет
Панорамные окна:
Нет
Мастер-спальня:
Нет
О проекте
Вам понравится проводить время в этом уютном пространстве. 139 м² для удобной и спокойной жизни. Выбор керамоблока обусловлен его теплоизоляционными свойствами. Дом спроектирован в духе дома в стиле модерн. В доме предусмотрено 4 спальни, что важно для комфорта.Характеристики
- Общая площадь: 182 м2
- Количество этажей: 2
- Стиль, разновидность: Дома в ином стиле
- Форма: Прямоугольные дома
- Тип кровли: Дома с четырехскатной крышей (вальмовой)
- Отделка: Без отделки
- Размер: 11x11
Отправьте свои контакты и мы расчитаем вам смету
Скорее всего вам подойдут следующие проекты домов:
Дом подходит для:
Дом подходит для:
Дом подходит для:














