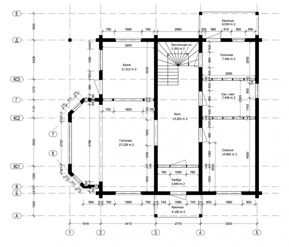
Проект одноэтажного дома Дом Марьино
Площадь
194 м 2
Размер дома:
9x12
Этажей:
1
Спален:
4
Санузел:
0
Гараж:
Нет
Баня:
Нет
Терраса:
Нет
Панорамные окна:
Нет
Мастер-спальня:
Нет
О проекте
Вам понравится проводить вечера в этих просторных комнатах.126 м² обеспечивают лёгкость и мобильность в повседневной жизни. Двухэтажная эргономичная планировка обеспечивает практичное распределение комнат. Наличие 3 спальни удовлетворит запросы семьи с детьми. Архитектура выполнена в стиле дома в стиле русский.Характеристики
- Общая площадь: 194 м2
- Количество этажей: 1
- Стиль, разновидность: Дома в стиле Русский
- Форма: Прямоугольные дома
- Тип кровли: Дома с иной крышей
- Отделка: Без отделки
- Размер: 9x12
Отправьте свои контакты и мы расчитаем вам смету
Скорее всего вам подойдут следующие проекты домов:
Дом подходит для:
Дом подходит для:
Дом подходит для:








