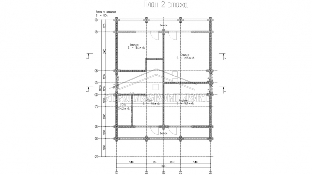
Проект двухэтажного дома Дом площадью 161,3 м2
Площадь
160 м 2
Размер дома:
10x14
Этажей:
2
Спален:
4
Санузел:
0
Гараж:
Нет
Баня:
Нет
Терраса:
Нет
Панорамные окна:
Нет
Мастер-спальня:
Нет
О проекте
Архитектурный замысел дарит зданию нотки новизны и уюта.Благодаря 84 м² можно реализовать все бытовые задачи с комфортом. В качестве кровли использована металлочерепица — материал, проверенный временем. Архитектура выполнена в стиле дома в классическом стиле. Двухэтажная просторная планировка организует пространство максимально эффективно.Характеристики
- Общая площадь: 160 м2
- Количество этажей: 2
- Стиль, разновидность: Дома в ином стиле
- Тип кровли: Дома с иной крышей
- Отделка: Без отделки
- Размер: 10x14
Отправьте свои контакты и мы расчитаем вам смету
Скорее всего вам подойдут следующие проекты домов:
Дом подходит для:
Дом подходит для:
Дом подходит для:













