Проект двухэтажного дома Дом с баней из клееного бруса Капучино-179
Площадь
179 м 2
Размер дома:
Этажей:
2
Спален:
2
Санузел:
0
Гараж:
Нет
Баня:
Нет
Терраса:
Нет
Панорамные окна:
Нет
Мастер-спальня:
Нет
О проекте
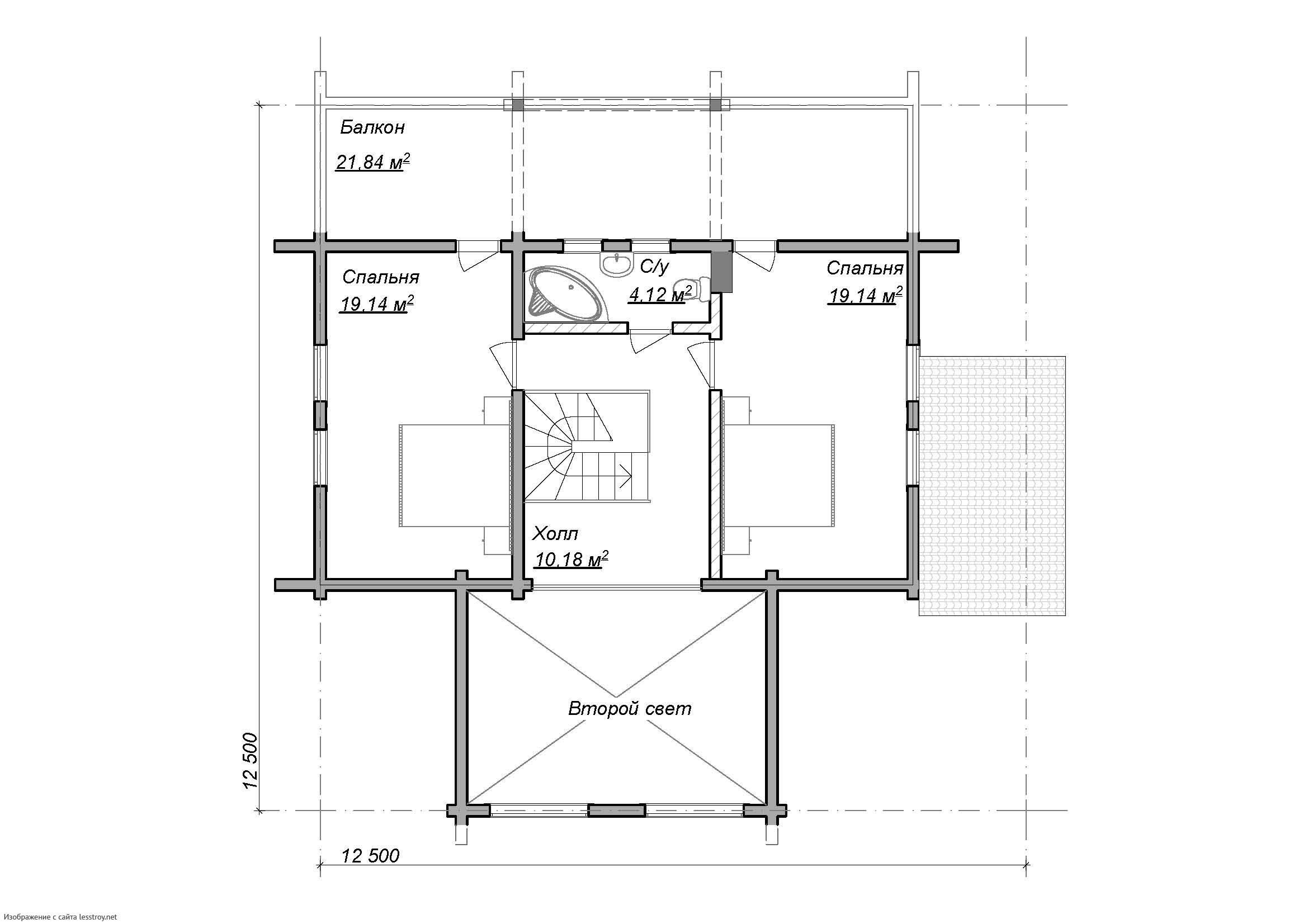
Уютный и стильный, этот дом из клееного бруса (179 м²) в стиле шале — идеальное место для отдыха. Две спальни, два этажа и битумная черепица создают атмосферу тепла и уюта.Характеристики
- Общая площадь: 179 м2
- Количество этажей: 2
- Стиль, разновидность: Дома в стиле Шале
- Форма: Прямоугольные дома
- Тип кровли: Дома с многощипцовой крышей
- Отделка: Без отделки
Отправьте свои контакты и мы расчитаем вам смету
Скорее всего вам подойдут следующие проекты домов:
Проект двухэтажного дома Дом из клееного бруса по проекту М331
Семья с двумя детьми
Дом подходит для:
Дом подходит для:
Дом подходит для:
Проект двухэтажного дома Проект 1324 - Дом из клееного бруса с 4 спальнями
Для большой семьи
Дом подходит для:
Дом подходит для:












