Проект двухэтажного дома Дом «Уютный»
Площадь
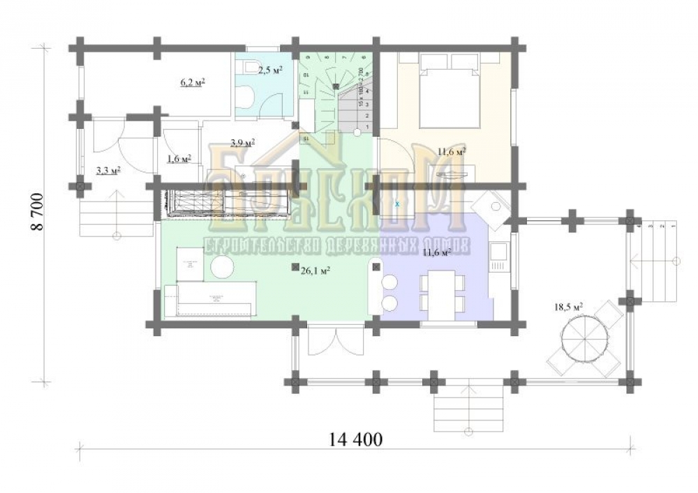
142 м 2
Размер дома:
Этажей:
2
Спален:
4
Санузел:
0
Гараж:
Нет
Баня:
Нет
Терраса:
Нет
Панорамные окна:
Нет
Мастер-спальня:
Нет
О проекте
Брусовый дом площадью 142 м² предлагает гармоничное сочетание традиций и современности. Два этажа позволяют комфортно разместить всю семью. Деревянные стены дышат, поддерживая оптимальную влажность. Фасад украшен декоративными панелями из дерева.Характеристики
- Общая площадь: 142 м2
- Количество этажей: 2
- Стиль, разновидность: Финские дома
- Форма: Прямоугольные дома
- Тип кровли: Дома с многощипцовой крышей
- Отделка: Без отделки
Отправьте свои контакты и мы расчитаем вам смету
Скорее всего вам подойдут следующие проекты домов:
Проект двухэтажного дома Дом из клееного бруса с террасой и балконом. Проект Светово.
Для большой семьи
Дом подходит для:
Дом подходит для:
Дом подходит для:
Дом подходит для:











