Проект одноэтажного дома Дом в Солнечногорске
Дом подходит для:
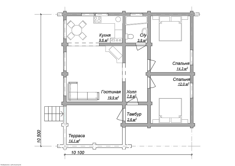
Площадь
94 м 2
Размер дома:
12,5х9,2
Этажей:
1
Спален:
3
Санузел:
1
Гараж:
Нет
Баня:
Нет
Терраса:
Да
Панорамные окна:
Нет
Мастер-спальня:
Нет
Планировка
Характеристики
- Общая площадь: 94 м2
- Жилая площадь: 82 м2
- Количество этажей: 1
- Гараж: нет
- Площадь кровли: 100 м2
- Форма: Квадратные дома
- Тип кровли: Дома с четырехскатной крышей (вальмовой)
- Пристрой: Дома с террасой
- Отделка: Без отделки
Материалы и перечень работ
- В стоимость не входит
- Подкладная достка из лиственницы
- Оцилиндрованное бревно Д от 20 до 32 см
- Деревянные нагели и металлические шпильки – используются при сборке сруба для равномерной усадки и усиления деревянной конструкции;
- Межвенцовый утеплитель «политерм» или «шелтер» - водонепроницаем, не гниет;
- Лифты регулировочные - используются для регулировки деревянной конструкции в процессе усадки.
- Металлочерепица (производители: Металл-Профиль, Grand Line, Ruukki, и т.д. )
- Стропила и контробрешетка для кровли - используется материал (внимание!!!) только камерной сушки (чтобы у вас не гнила стропильная конструкция, когда смонтируют утеплитель). Сечение пиломатериалов – рассчитывается индивидуально на основании инженерных расчетов.
- Гидро-ветрозащитная мембрана Tyvek.
- Пароизоляционные пленки компании Ютафол, Tyvek Airguard SD5, Delta Reflex и т.д.
- Пружинные компенсаторы усадки – для фронтонов
- В стоимость не входит
- В стоимость не входит
- В стоимость не входит
- В стоимость не входит
- Подкладная достка из лиственницы
- Оцилиндрованное бревно Д от 20 до 32 см
- Деревянные нагели и металлические шпильки – используются при сборке сруба для равномерной усадки и усиления деревянной конструкции;
- Межвенцовый утеплитель «политерм» или «шелтер» - водонепроницаем, не гниет;
- Лифты регулировочные - используются для регулировки деревянной конструкции в процессе усадки.
- Металлочерепица (производители: Металл-Профиль, Grand Line, Ruukki, и т.д. )
- Стропила и контробрешетка для кровли - используется материал (внимание!!!) только камерной сушки (чтобы у вас не гнила стропильная конструкция, когда смонтируют утеплитель). Сечение пиломатериалов – рассчитывается индивидуально на основании инженерных расчетов.
- Гидро-ветрозащитная мембрана Tyvek.
- Пароизоляционные пленки компании Ютафол, Tyvek Airguard SD5, Delta Reflex и т.д.
- Пружинные компенсаторы усадки – для фронтонов
- В стоимость не входит
- В стоимость не входит
- В стоимость не входит
Что еще входит в стоимость:
Отправьте свои контакты и мы расчитаем вам смету
Скорее всего вам подойдут следующие проекты домов:
Дом подходит для:
Дом подходит для:
Дом подходит для:









