Ваш город:

Проект двухэтажного дома ДримХаус

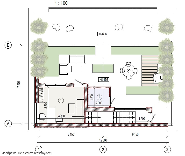
Площадь: 300 м2
Размер: 8x13
Дом подходит для:
Для большой семьи
Этажей:
4
Стены:
Кровля:
Битумная черепица
Цена:
Оставить заявку
Площадь
300 м 2
Размер дома:
8x13
Этажей:
4
Спален:
4
Санузел:
0
Гараж:
Нет
Баня:
Нет
Терраса:
Нет
Панорамные окна:
Нет
Мастер-спальня:
Нет
О проекте
Дом выглядит привлекательно в любое время суток.Суммарная площадь 148 м² создаёт атмосферу простора. Количество спален — 4, делая планировку гибкой. Двухэтажная современная планировка делает зонирование более логичным. Рубероид придаёт дому выразительность и надёжность.

Характеристики
  • Общая площадь: 300 м2
  • Количество этажей: 4
  • Стиль, разновидность: Дома в стиле Модерн
  • Форма: Прямоугольные дома
  • Тип кровли: Дома с плоской крышей
  • Отделка: Без отделки
  • Размер: 8x13
Отправьте свои контакты и мы расчитаем вам смету
Прикрепить документ
Скорее всего вам подойдут следующие проекты домов: