Проект двухэтажного дома Дриммер
Площадь
166 м 2
Размер дома:
8x12
Этажей:
2
Спален:
3
Санузел:
0
Гараж:
Нет
Баня:
Нет
Терраса:
Нет
Панорамные окна:
Нет
Мастер-спальня:
Нет
О проекте
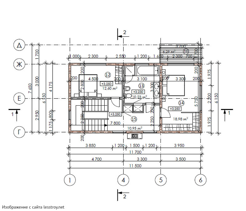
Архитектура подчеркивает единство с природным окружением.Дом с 25 м² — отличное начало для загородной жизни. Архитектура выполнена в стиле дома в классическом стиле. Одноэтажная уютная планировка обеспечивает практичное распределение комнат. Каркаса делает дом надёжным при любой погоде.Характеристики
- Общая площадь: 166 м2
- Количество этажей: 2
- Стиль, разновидность: Дома в стиле Модерн
- Форма: Прямоугольные дома
- Тип кровли: Дома с плоской крышей
- Отделка: Без отделки
- Размер: 8x12
Отправьте свои контакты и мы расчитаем вам смету
Скорее всего вам подойдут следующие проекты домов:
Дом подходит для:
Дом подходит для:
Дом подходит для:










