Проект двухэтажного дома Двухэтажный дом Вилладжио
Площадь
124 м 2
Размер дома:
Этажей:
2
Спален:
3
Санузел:
0
Гараж:
Нет
Баня:
Нет
Терраса:
Нет
Панорамные окна:
Нет
Мастер-спальня:
Нет
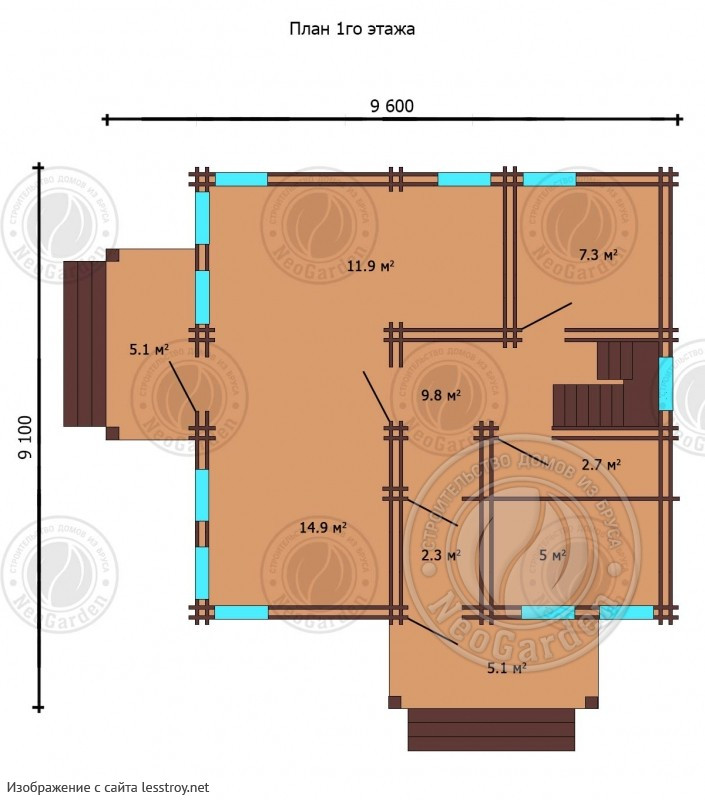
О проекте
Брусовый дом площадью 124 м² предлагает функциональность и уют. Два этажа с тремя спальнями делают его удобным для семьи. Материал стен придает дому природную теплоту. Проект идеален для загородного отдыха или постоянного проживания.Характеристики
- Общая площадь: 124 м2
- Количество этажей: 2
- Стиль, разновидность: Дома в ином стиле
- Форма: Прямоугольные дома
- Тип кровли: Дома с четырехскатной крышей (вальмовой)
- Отделка: Без отделки
Отправьте свои контакты и мы расчитаем вам смету
Скорее всего вам подойдут следующие проекты домов:
Дом подходит для:
Дом подходит для:
Дом подходит для:













