Проект одноэтажного дома E-105-1D
Дом подходит для:
Площадь
105 м 2
Размер дома:
15,5х8,3
Этажей:
1
Спален:
2
Санузел:
1
Гараж:
Нет
Баня:
Нет
Терраса:
Нет
Панорамные окна:
Нет
Мастер-спальня:
Нет
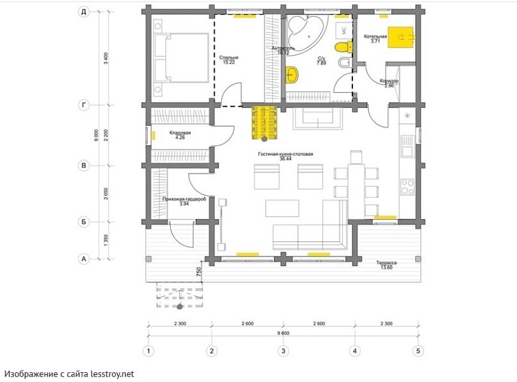
Планировка
Фасады
О проекте
Дом из бревна площадью 105 м² создан для семейного уюта и тепла. Жилая зона 86 м² включает две спальни, обеспечивая комфорт для всех. Металлочерепица на кровле добавляет надежности, а натуральное дерево наполняет интерьер гармонией. Здесь сочетаются традиции и современные технологии.Характеристики
- Общая площадь: 104.7 м2
- Жилая площадь: 86 м2
- Количество этажей: 1
- Гараж: нет
- Площадь кровли: 109 м2
- Отделка: Без отделки
- Фундамент: Дома с железобетонным свайным фундаментом
Материалы и перечень работ
- Сборный ж/б
- Наружные стены - оцилиндрованное бревно ∅220 мм
- Перекрытия - по деревянным балкам
- Покрытие кровли - металлочерепица
- В стоимость не входит
- В стоимость не входит
- Наружная отделка - тонировка
- Сборный ж/б
- Наружные стены - оцилиндрованное бревно ∅220 мм
- Перекрытия - по деревянным балкам
- Покрытие кровли - металлочерепица
- В стоимость не входит
- В стоимость не входит
- Наружная отделка - тонировка
Что еще входит в стоимость:
Отправьте свои контакты и мы расчитаем вам смету
Скорее всего вам подойдут следующие проекты домов:
Дом подходит для:
Дом подходит для:
Дом подходит для:






