Ваш город:

Проект одноэтажного дома ЭКО 501

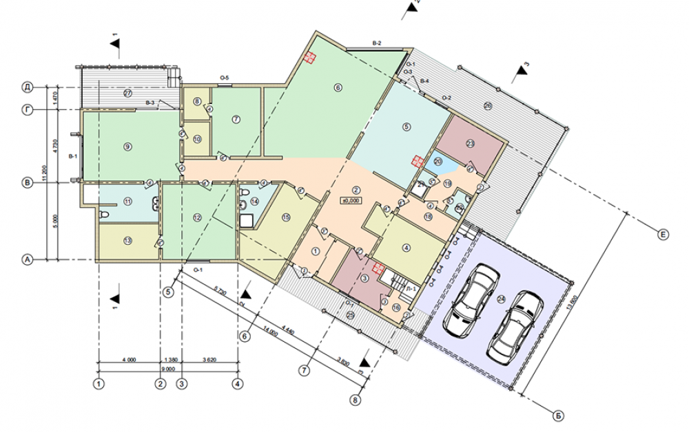
Площадь: 275 м2
Размер: 15x18
Дом подходит для:
Для большой семьи
Этажей:
1
Стены:
Кровля:
Металлочерепица
Цена:
Оставить заявку
Площадь
275 м 2
Размер дома:
15x18
Этажей:
1
Спален:
4
Санузел:
0
Гараж:
Нет
Баня:
Нет
Терраса:
Нет
Панорамные окна:
Нет
Мастер-спальня:
Нет
О проекте
Проект дарит дому четкие линии и мягкость семейных отношений. С площадью 165 м² легко реализовать уникальный интерьер. Двухэтажная уютная планировка разграничивает спальные и дневные помещения. Выбор бревна обусловлен его теплоизоляционными свойствами. В доме предусмотрено 3 спальни, что важно для комфорта.

Характеристики
  • Общая площадь: 275 м2
  • Количество этажей: 1
  • Стиль, разновидность: Дома в стиле Модерн
  • Форма: Прямоугольные дома
  • Тип кровли: Дома с многощипцовой крышей
  • Отделка: Без отделки
  • Размер: 15x18
Отправьте свои контакты и мы расчитаем вам смету
Прикрепить документ
Скорее всего вам подойдут следующие проекты домов: